Memoria Técnica del Proyecto
Agradecimiento:
Primeramente agradecemos a Dios por la oportunidad de realizarnos como personas y futuras Ingenieras Industriales, dándonos la capacidad de poder culminar nuestro trabajo. También agradecemos a cada persona que aportó su tiempo y disposición para que éste proyecto sea realizado de manera exitosa haciéndolo posible, muchísimas gracias a:
Nicaury L. Custodio
Yuleidys Santos
Danilo Decoraciones S.A.
Rawel Santana
Oliver Ferrera
Anyines Antoine
A nuestros familiares, principalmente nuestros padres que brindaron toda la ayuda posible y aquellas otras personas que no fueron mencionadas pero fueron parte importante del fruto que con mucho esfuerzo y sacrificio presentamos.
Índice
Introducción……………………………………………………………………… 7
Danilo Decoraciones S.R.L (DADESA)……………………………………….. 8
Descripción y breve historia de la empresa……………………………………. 8
Descripción de los procesos de la empresa…………………………………… 9
Diagrama del proceso de producción…………………………………………. 9
Maquinaria……………………………………………………………………. 11
Materiales……………………………………………………………………… 11
Análisis FODA…………………………………………………………………. 11
Novedades……………………………………………………………………. 12
Levantamiento e identificación de posibles necesidades de mercado..12
Análisis de usuarios…………………………………………………………… 13
Identificación de necesidades………………………………………………… 14
Jerarquización de necesidades……………………………………………….. 15
Oportunidades de mercado…………………………………………………… 15
Análisis de mercado…………………………………………………………… 16
Segmentación de mercado……………………………………………………. 16
Oportunidades de cada producto según la empresa………………………… 17
Análisis de las relaciones del producto………………………………………. 18
Relación producto-usuario…………………………………………………… 18
Relación producto-entorno………………………………………………….. 18
Relación producto-producto…………………………………………………… 19
Investigación de aspectos generales………..………………………………… 19
Aspectos físicos y técnicos……………………………………………………… 19
Aspectos funcionales………………………………………………………….. 19
Aspecto económico…………………………………………………………… 20
Declaraciones de trabajo ……………………………………………………… 20
Acta de constitución del proyecto …………………………………………… 35
Investigación de mercado y necesidades del consumidor final………… 40
Planteamiento del problema………..………………………….……………… 40
Objetivos ……………………………………………………..………………… 41
Objetivo general………………………………………..…………………….. 41
Objetivos específicos …………………………………………………………. 41
Preguntas de investigación ………………………………………………….. 41
Justificación de la investigación ………………………………………………. 42
Levantamiento de información……………………………………………….. 42
Interpretación………………………………………………………………….. 43
Análisis de mercado ………………………………………………………….. 44
Establecimiento de necesidades ……………………………………………… 44
Priorización de necesidades ………………………………………………… 46
Tipos de consumidores……………………………………………………….. 47
Motivación de compra del cliente …………………………………………… 47
Proceso de compra del cliente ……………………………………………….. 48
Comportamiento y conducta del cliente………..……………………………. 48
Atributos en la compra ……………………………………………………….. 50
Análisis de la competencia ……………………………………………………. 51
Entrevistas …………………………………………………………………….. 52
Especificaciones y requerimientos del producto final…………………… 54
Grado de importancia de necesidades ………………………………………. 54
Especificaciones……………………………………………………………….. 55
Métricas y necesidades …………………………………………………………. 55
Justificación…………………………………………..……………………………. 56
Matriz de necesidades métricas………………………………..…………….. 58
Comparación con la competencia ………………………………………………. 58
Muestra de productos comparados …………..…………………………….. 59
Tabla de comparación…………………………………………..…………….. 61
Valores ideales y marginalmente aceptables………………………………….. 62
Análisis de RCA y las 5m ……………………………………………………………… 63
Casa de la calidad …………………………………………………………………….. 64
Generación de conceptos ……………………………………………………………… 66
Aclaración del problema ……………………………………………………………. 66
Diagrama funcional……………..…………………………………………………… 67
Buscar externamente …………………………………………………………………. 67
Consulta a expertos ……………………………………………………………… 68
Usuarios líderes ……………………………………………………………………. 69
Literatura publicada …………………………………………………………….. 70
Patentes ……………………………………………………………………………. 71
Benchmarking ……………………………………………………………………. 71
Buscar internamente …………………………………………………………………. 73
Explorar sistemáticamente …………………………………………………………… 74
Árbol de clasificación de la distribución…………………………………….. 74
Tabla de combinación …………………………………………………………. 75
Evaluar los conceptos……………………………………………………………….. 76
Evaluación y selección del concepto final…………………………………………… 80
Métodos para escoger conceptos ………………..………………………………. 80
Votación múltiple ………………………………………………………………… 80
Encuesta en internet…………………………………………………………….. 81
Pros y contras ……………………………………………………………………… 82
Prototipos y prueba ………………………………………………………………. 83
Matrices de selección………………………………..………………………………. 87
Pugh Matrix ………………………………………………………………………… 87
Resultados obtenidos ……………………………………………………………. 89
Posicionamiento de conceptos no descartados …………………………… 90
Evaluación de conceptos………………………..………………………………….. 91
Ordenar los conceptos ………………………………..…………………..…………. 93
Combinar y mejorar conceptos..…………………..………………………………. 93
Seleccionar uno o más conceptos ………………..………………………………. 94
Prueba de conceptos …………………………………………………………………….. 95
Definir el propósito de la prueba ………………..…………………………………. 95
Preguntas a contestar con la prueba ………………………………………… 96
Escoger una población a encuestar…………..………………………………….. 97
Comunicar el concepto ………………..……………………………………………. 97
Medir respuesta del cliente………………..………………………………………… 98
Interpretar los resultados ….…………..……………………………………………… 98
Pruebas de prototipos ………………..……………………………………………… 99
Gabinete hermético …………………………………………………………..……. 99
Gabinete rotativo…………….………………………………………………..……. 100
Gabinete lateral …………………………………………………………..…………. 101
Gabinete móvil …………………………………………………………………..……. 102
Gabinete médico…………………………………………………………..……….. 103
Introducción
A continuación, se muestra una memoria técnica de nuestro proyecto final. En la cual se recopila e ilustra todo nuestro proceso de recolección, análisis, tratamiento y traducción de datos. Enfocamos nuestro trabajamos en la empresa Danilo Decoraciones S.R.L., (DADESA), empresa de ebanistería de alto renombre, localizada en una nave industrial ubicada en el Km 15 ½ de la autopista Duarte del municipio de Los Alcarrizos, Santo Domingo.
Trabajamos en la oportunidad encontrada de un nuevo tipo de gabinete que satisfaga las necesidades identificadas más relevantes de los clientes. Comenzamos con una idea un poco aérea, pero a través del proceso de desarrollo, fuimos investigando para mejorarla, filtrando los conceptos y añadiendo o suprimiendo detalles no relevantes, ya que todo este proceso se basa en la iteración.
Primero comenzamos con la planeación de nuestro proyecto, trazando nuestro objetivo y nuestras directrices a seguir, luego identificamos necesidades del cliente generando las diferentes ideas o conceptos, realizando benchmarking y recolectando las opiniones de diversos tipos de usuarios líderes. La evaluación de los conceptos se llevó a cabo a través de matrices de decisión, evaluando cada concepto generado para su posterior selección, refinamiento y prueba.
En la etapa de prueba y refinamiento de concepto de producto utilizamos diversos métodos para la elección de los más prometedores y poder descartar o rechazar los demás, como son la realización de prototipos físicos a escala, para determinar el diseño y sensación del usuario al realizar contacto y la creación de simulaciones en un poderoso software informático como lo es SolidWorks.
Todo el proceso se realizó tomando en consideración las opiniones de los usuarios y potenciales clientes, recolectadas a través de encuestas y entrevistas, en diversas ocasiones del proceso.


Descripción y breve historia de la empresa
Danilo Decoraciones S.R.L (DADESA) inicia en el año 1994, cuando el señor Danilo Rafael Santos (propietario) decide formar su propia empresa de ebanistería y así desarrollar un sueño y una fuente de empleo en su comunidad para lograr implementar un arduo trabajo en lo que tanto le apasionaba. Las Instalaciones fueron ubicada en la C/17 #22, Savica, Los Alcarrizos los primeros años.
Dicho negocio estuvo allí hasta el 2002, ya que decidieron ampliar por motivo de que la empresa había crecido considerablemente y tenía mucha demanda de los productos y servicios que la empresa y sus colaboradores ofrecían, lo ideal era poder tener un local propio (nave industrial). Con la visión del crecimiento y la necesidad de adquirir más personal se logran mudar en una nave industrial ubicada en el Km 15 ½ de la autopista Duarte del municipio de Los Alcarrizos. Actualmente la empresa cuenta con colaboradores y está ubicada en el mismo lugar para así poderle brindar una localidad más cómoda y fácil de llegar a nuestros clientes, ofrecer el mejor servicio y llegar a conquistar nuevos segmentos del mercado.
Descripción de los procesos de la empresa
Durante nuestra visita en Dadesa se nos brindo un recorrido por el taller y sus instalaciones, donde se nos explicó el proceso de producción de dicha ebanistería. La empresa se encarga de fabricación y decoración de muebles, ventanas, gabinetes, etc.
Dadesa tiene varias empresas que le distribuyen la materia prima, la maderadentro de estas estan: Manuel Corripio y Madesol, los cuales importan madera.
El proceso de producción empieza cuando llega la materia prima, ya que siempre tienen un gran flujo de ordenes. La madera se corta a la medida en una maquina llamada Radial, luego pasa al Desglozador, donde se limpia la madera, se pule y se le hace la montura. El siguiente paso es en el área de diseño, donde se le hacen las ranuras, se redondea y se le crean aberturas dependiendo de lo que el cliente pida. Una vez que el diseño esté listo se pule la madera a mano con una Vibradora, se masilla y se cubren las faltas con ferre y masilla, esto cuenta como los detalles finales. Una vez que la mayoría de las faltas estén cubiertas, se lleva al área de pintura, se le da una capa de pintura, se retocan algunos diseños finales o algún otro retoque con masilla, se pinta por segunda vez, para un mejor acabado y se introduce en el horno de secado.
Diagrama del proceso de producción puertas/ventanas





Maquinaria
*Radial, utilizado para cortar madera.
*Garlopa eléctrica
*Rifle
*Desglozador
*Pulpo o prensa
- Calibradora
Materiales
*Madera
*Lijas
*Discos de pulir
*Cola
*Clavos
*Laca/pintura
*Bisagras
Análisis FODA
Fortalezas:
· Costos más bajos que la competencia.
· Buena calidad de productos y todos los productos son personalizados.
· Excelente localización la cual es cómoda y accesible para los clientes.
· Control de los pedidos.
· Personal Capacitado.
· Trabajo en equipo.
· Multifuncionalidad del personal.
· Personal comprometido y Proactivo.
· Cumplimiento con el tiempo de entrega en los productos (puntualidad).
Oportunidades:
· Pueden abarcar más segmento del mercado.
· Pueden desarrollar o adquirir nuevas tecnologías de fabricación.
· La competencia es débil.
· Crecimiento de la población en el sector en donde se localiza.
· Acceso a la información.
Debilidades:
· No hay una dirección estratégica.
· No hay un departamento de RR.HH.
· No posee una dirección estratégica de ventas.
· Escaso Esfuerzo Publicitario.
· Falta de eficiencia de almacén.
· Logística inadecuada.
· Falta de presencia en la ciudad.
· Estandarización de los procedimientos.
Amenazas:
· Puede haber pérdidas de venta debido a productos sustitutos, cambios en los gustos y preferencia de los clientes.
· Competidores de la misma industria con mayor tecnología y maquinaria para la realización de los productos.
· Presencia de la competencia en todo el país.
· Muchos talleres informales que pueden captar clientes.
Novedades
Actualmente Dadesa tiene un proyecto con la constructora Bisonó, donde tiene el compromiso de fabricar puertas para 10 edificios y 20 casas aproximadamente. No innovan, ya que como es un taller que se maneja por ordenes y/o contrataciones, crean directamente el diseño que el cliente desee (diseños personalizados). Su objetivo es desarrollar soluciones que se anticipen y satisfagan las necesidades de los clientes, con productos y servicios de alto valor, asumiendo para ello riesgos calculados.
Una vez que tenemos claro la capacidad operacional de la empresa y los productos que ofrecen, proseguimos a realizar un levantamiento con la finalidad de identificar posibles necesidades que no han sido abarcadas y que sean potenciales para el mercado.
Levantamiento e identificación de posibles necesidades de mercado
En esta primera etapa del proyecto analizamos los usuarios utilizando un método muy efectivo y veraz, el método de encuestas. Realizamos la investigación enfocándonos en la cocina debido a que es un área no explotada por la empresa, su producción se centra en puertas y ventanas. Conseguimos y analizamos información sobre que les brinda insatisfacción a los usuarios que frecuentan la cocina.
Análisis de usuarios
Con la directriz de identificar mejor las necesidades de los clientes para obtener información de alta calidad, que nos pudieran resultar útiles a la hora de tomar la dirección de nuestro proyecto, realizamos una visita a la empresa Danilo Decoraciones S.R.L. en donde nos reunimos con la Licenciada Yuleidys Santos, quien nos ayudó explicándonos las características de sus productos, además conversamos con el Encargado de Producción y con algunos ebanistas del taller. A partir de estas conversaciones comprendimos que existen muchas necesidades y oportunidades que ellos no abarcan como, por ejemplo, la fabricación de muebles para una de las áreas más usadas del hogar, la cocina.
Una vez que acordamos donde centrar nuestra investigación, realizamos una encuesta vía Web a través de SurveyMonkey a 30 usuarios comunes de la cocina, ya que, basándonos en la inferencia estadística, 30 usuarios es la condición mínima para que un muestreo aleatorio presente confiabilidad, en el cual la mayoría de los participantes fueron adultos de entre 18 y 25 años (75.86%).
Todos los encuestados son usuarios que tienen alguna interacción directa con la cocina, donde el 36.67% la utiliza siempre, el 26.67% regularmente y otro 36.67 la utiliza a veces. Se puede observar que la madera es el material más utilizado para los decorados de la cocina, dígase los gabinetes o estantes, ya que se presentan en las cocinas en un 90.00% de los encuestados. Su grado de satisfacción en cuanto a los gabinetes de su cocina no son nada favorables, ya que variables como la distribución errónea del espacio, el tamaño de los gabinetes, la altura de estos y su organización interna se mantienen presentes en niveles desfavorables. Un problema muy común es que la presencia de insectos en ellos y el cierto acceso directo que tienen los niños a estos, lo cual es ciertas circunstancias no es lo más favorable. Dentro de los encuestados el 90% concordó en que estaba de acuerdo con cambiar ciertos aspectos de estos para una mayor comodidad y eficiencia, y 29 sugerencias fueron especificadas.
Referirse al anexo 1 para visualizar las informaciones obtenidas mediante las encuestas.
Identificación de necesidades
Para elaborar la identificación de necesidades llevamos a cabo un análisis profundo de cada apartado. Tomando en cuenta las siguientes preguntas:
· ¿qué necesidad desea resolver?
· ¿cómo se satisface la necesidad?
· ¿qué necesidades no cubre el producto que se ofrece?
· ¿por qué, en qué momento y dónde satisface esa necesidad?
Partiendo del mercado de los productos de Danilo Decoraciones, obtuvimos una gama amplia de creaciones de productos de los cuales nos enfocamos en: estantes, gabinetes y despensas de cocina. Para éstos tipos de productos identificamos una serie de necesidades que consideramos como requeridas a satisfacer, las cuales son:
· Mantener hermético los alimentos y losas en el hogar.
· Que los estantes y gabinetes tengan el espacio suficiente, además de que sea un espacio ergonómico acorde al espacio requerido.
· Confort a la hora del agarre, posicionamiento y alcance del producto.
· Satisfacer ergonómicamente el producto tomando en cuenta los parámetros de una persona promedio que ayuda al almacenamiento y buena distribución de los gabinetes en los cuales se puede tomar en cuenta la inclinación de la espalda baja y otros factores.
· Confortabilidad para que el mueble se adapte al cuerpo del cliente y no de manera contraria.
· Material más reutilizable y recuperable para reciclar, proveniente de fuentes de suministros sostenibles, llamativos y de gran avance de desarrollo.
· Que el material de los muebles tenga propiedades de pérdida calórica, en otras palabras, que cada mueble tenga ventilación.
· Mantenimiento de una estructura estable.
· Disminución tiempo en la realización del montaje de los productos.
· Que los materiales no sean muy sintéticos y que tengan estética llamativa acordes a los estándares de los gustos de personas.
Las necesidades empleadas y planteadas por nuestro equipo comprenden lo que el cliente común puede necesitar mediante, análisis y encuestas pudimos determinar estos parámetros de calidad que necesita un cliente a satisfacer para los diversos tipos de muebles.
Jerarquización de Necesidades
Una vez que identificamos las necesidades, procedimos a clasificarlas por prioridad en una lista jerárquica, este paso lo hicimos de manera intuitiva partiendo de las informaciones obtenidas mediante la encuesta realizada.

Oportunidades de mercado
Para identificar las oportunidades existentes, que aún no han sido satisfechas por el mercado, nos enfocamos en lo siguiente:
· Encontrar oportunidades no abarcadas: mejoras e Ineficiencias que pueden ser corregidas, por ejemplo: lo poco hermético que son los gabinetes.
· Detectar clientes insatisfechos: establecer comunicación directa con ellos y conocer en dónde se originan las causas de su insatisfacción.
· Aparición de nuevos públicos: cuando personas se independizan, ya sea para casarse o vivir solo, surten su hogar y nunca falta un gabinete y/o estante para mayor organización.
· Buscar fallos del mercado: A veces, la insatisfacción se origina en el mercado y no en las expectativas de los clientes. explorar el mercado a fondo para tratar de detectar dichos fallos y corregirlos.
Danilo Decoraciones, al ser una ebanistería, tiene muchas oportunidades de mercado, las cuales no han sido explotadas. Pueden innovar diferentes diseños de estantes con distintas funcionalidades. Cuentan con un buen arsenal de maquinarias y herramientas para la fabricación de sus productos. Su principal competencia es Roa Industrial C. por A. (ROICA), quien es la empresa líder en fabricación de muebles modulares para cocinas. Pero a pesar de eso, hay mucho potencial que DADESA puede explotar que probablemente nadie se ha interesado en explotar.
Análisis de mercado
Para la buena elaboración del análisis del mercado dividimos o segmentamos el mercado en grupos uniformes más pequeños, ya que de esta manera la empresa podrá adaptar mejor su oferta para satisfacer las necesidades de los consumidores de una forma más efectiva.
Para mayor factibilidad del proyecto determinamos los potenciales clientes en función de diferentes tipos de variables. Estudiamos dichas variables desde el ámbito geográfico, demográfica, psicográfico, Socioeconómico y conductual.
Segmentación de mercado


Según las informaciones obtenidas en la segmentación del mercado, hay una gran tasa de utilización del producto, por lo que tendría mucho auge, debido a que casi todas las familias tienen despensas y gabinetes. Para la fijación de costos hay que tomamos en cuenta que el producto se va a realizar para familias de clase media y alta, con niveles de ingreso de 2 salarios mínimos aproximadamente.
Oportunidades de cada producto, según las capacidades de la empresa
En esta fase llevamos a cabo la realización de un embudo de oportunidades para identificar las oportunidades potenciales de la empresa. Las oportunidades con las que cuenta DADESA según sus capacidades operacionales y su catálogo de productos, son las siguiente:
Puertas:
o Modificar la estética de las puertas para que sea más atractivo para el público.
o Agregar sistema novedoso para la protección de las mismas. Mejorar la resistencia y durabilidad.
o Agregar una cubierta o capa protectora, para protegerlas del agua que salpica cuando se está limpiando.
Gabinetes:
o Mejorar las divisiones internas para aumentar la organización y facilitar al usuario.
o Innovar en el diseño para evitar que entren insectos en los mismos. (algo muy pedido en las encuestas que vimos anteriormente)
o Crear sistema de seguridad para guardar las medicinas y mantenerlas alejadas de los niños.
Estantes:
o Lo más factible sería rediseñar las despensas de manera que no ocupen tanto espacio y que sean de fácil acceso, lo cual acomode al usuario de la manera más ergonómica posible.
Análisis de las relaciones del producto
Relación producto-usuario
Los estantes brindan comodidad en cualquier lugar en que estos se localicen, ya que su fácil manejo y su virtud de organización hacen que la búsqueda de diferentes productos en los momentos cruciales sea más sencilla.
En general los estantes son hechos de madera de una manera tradicional, con aperturas en donde colocar los objetos; pero existen estantes inteligentes, los cuales se han desarrollado en los últimos tiempos, en donde se conoces las frecuencias y consumos de los usuarios, realizan pedidos online, elaboran listas de compra dependiendo de la jerarquía de las necesidades del usuario, registros de entradas y salidas.
Relación producto-entorno
En la mayoría de los hogares o en los diversos locales existen despensas en donde almacenar ciertos tipos de productos. En las casas hay alacenas, donde se guardas los alimentos que no necesitan cierta refrigeración; en los centros médicos hay ciertos gabinetes en donde se guardan medicamentos y/o utensilios médicos; en un restaurante se almacenan los ingredientes de los platos y los utensilios de cocina.
En la actualidad existen una enorme variedad de despensas dependiendo para el entorno encontrado y su funcionalidad. Su tamaño, estilo, color, forma dependerá de manera directa a las necesidades que vaya a cumplir, la preferencia del usuario y el presupuesto destinado.
Debido al cambio climático, los productos ecológicos tienen un gran mercado o sea una gran aceptación por los clientes. Esto implica la utilización de materiales reciclados y diseños alusivos al cuidado del ambiente.
Relación producto-producto
El diseño de estantes es importante, ya que con un diseño erróneo los espacios destinados se pueden malinterpretar, dificultar el proceso almacenar-encontrar, y retrasar la obtención de un producto en algún caso de emergencia.
Investigación de los aspectos generales
Aspectos físicos y técnicos
· Color: Entre los colores más comunes se encuentras los diversos tipos de marrón (color madera) siendo este un estilo clásico y reservado que lo prefieren los clientes adultos. El blanco se ha destacado como un estilo vanguardista, y es aclamado por jóvenes y adultos jóvenes.
· Material: Aunque el más usual es la madera, también se pueden encontrar estantes de materiales sintéticos, ladrillos, metal. Cabe destacar que las maderas más usadas son yequitibo, roble, pino y caoba.
· Dimensiones: Las dimensiones más comunes son 12*85*24 (Profundidad* altura* diámetro), 12*66*24 y 24*9*31.
· Composición: tablas, bisagras, refuerzos, tornillos, cola, pintura, lijas y discos.
· Aspectos técnicos: entre estos se encuentran los materiales, las herramientas y componentes (físicas o intelectuales) utilizados.
Aspecto funcional
El funcionamiento de los estantes es almacenar, de una manera organizada y a una temperatura ambiente, productos a elección del usuario que use continuamente o de vez en cuando. El nivel de almacenamiento y la utilidad optima del estante dependerán del tamaño y el diseño de estos.
Aspecto económico
¿A qué precio se vende este producto? El precio depende del tamaño y de los materiales del producto, pero su precio está entre 11,600 en adelante, debido a que se le suma un 30% (ganancia) más un 18% (ITBIS).
¿Qué necesidades satisface? Suple la necesidad de crear un espacio destinado para la organización y el almacenamiento de diversos productos.
¿Qué personas lo utilizan? Todas las personas exceptuando los niños pequeños entienden y manejan el uso de los estantes y los utilizan en muchos lugares como son el hogar, la escuela, en consultorios médicos, entre otros.
Declaraciones de Trabajo del Proyecto (SOW)
Una vez que hemos identificado y priorizado las necesidades del cliente realizamos las declaraciones de trabajo, donde se presenta, de manera detallada, una descripción narrativa de los conceptos potenciales que pueden llegar a satisfacer las necesidades de los clientes.
Dichos SOWs definen el alcance del trabajo requerido y el tiempo que se supone se necesita para llevarlo a cabo. En él se establecen todos los detalles e informaciones relevantes las expectativas, los resultados, lo que es aceptable, el precio, el cronograma, la forma de pago, etc. A continuación, se detallan cada una de las declaraciones de trabajo, para luego proceder a realizar el Project Charter.

Resumen
Este Proyecto tiene como objetivo incitar a que la empresa SADOSA innove en el diseño de gabinetes para guardar loza, de manera que se pueda aprovechar el espacio y que les facilite a los usuarios de baja estatura acceder a la loza que se encuentra a mayor altura.
Objetivos:
- Satisfacer las necesidades de los usuarios de baja estatura.
- Comodidad a la hora de la obtención de los productos.
- Amplia gama de opciones a la hora de la selección del producto.
Alcance del Proyecto
En República Dominicana la estatura promedio de las mujeres es 5’5 y de los hombres es 5’7. Por lo que podemos afirmar que la mayor parte de la población es de baja estatura, aunque los gabinetes estén situados a una distancia considerable, aun así, es incómodo acceder a la parte superior de los mismos. Cabe destacar que cuando una persona de baja estatura quiere alcanzar alguna loza que se encuentra en la parte superior del gabinete, tiende a realizar movimientos bruscos e incómodos, los cuales además de ser anti ergonómicos causan contracciones involuntarias de los músculos (espasmos musculares).
Partiendo de la problemática explicada anteriormente, hemos tenido la idea de diseñar un gabinete que tenga un sistema de rodamiento. Consiste en que cuando el usuario vaya a buscar la loza en el gabinete, y esta se encuentre en la parte superior, su pueda girar (que lo está abajo sube y lo que está arriba baja) y así se tenga total acceso.
Especificaciones:
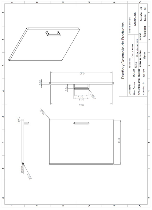
El desarrollo de este diseño se confeccionaría en madera. Tendría una altura de 48 pulgadas con respecto al suelo, la altura de este gabinete sería de 34 pulgadas, el diámetro de 32 y la profundidad de13.
En el interior tendrá una rueda incrustada, de madera también, la cual tendrá compartimentos para guardar lo que le usuario desee. Tendría un radio de 14 pulgadas y 10 de profundidad para mejor acceso.




Resumen
El objetivo principal de este proyecto es incitar a la empresa Danilo Decoraciones S.R.L. a que realice innovaciones en el área de gabinetes herméticos, los cuales debidos a sus conceptos cierran perfectamente. Danilo Decoraciones es una empresa que no innova, trabaja más en productos diseñados por sus mismos clientes. Con la inserción de estos en su mercado, asegurarían la durabilidad de los productos almacenados ya que impediría la inserción del aire, fluidos, animales o bichos a los mismos.
Entre los objetivos del mercado se encuentran:
- Satisfacer las necesidades de los usuarios activos de estantes.
- Cumplir con la expectativa del cliente
- Aseguramiento de la durabilidad de los productos almacenados.
Alcance del proyecto
República Dominicana es un país con clima subtropical, donde es muy común encontrar bichos tanto en casas, edificaciones, lugares de trabajos, en las calles como en áreas públicas.
Las plagas son un problema, la gran mayoría de la población por no decir toda sufrimos constantemente esta problemática. La interacción de los humanos con esta puede resultar en problemas serios, ya que éstas transmiten bacterias y enfermedades que pueden ser transmitidas directamente hacia los humanos, y algunas pueden ser mortales.
Una de las plagas más comunes son las cucarachas a las cuales se las conoce por los daños que suelen producir en los alimentos que tocan, aunque el perjuicio no radica en el material que están comiendo, sino en la contaminación que suelen producir mediante sus secreciones, las cuales poseen un olor totalmente desagradable. Además, dejan virus y bacterias, los cuales suelen ser transportados luego de haber contactado con las heces que están en las alcantarillas en donde andan.
Entre las enfermedades que los humanos pueden contagiarse de estos bichos se encuentran leptospirosis, peste bubónica, lepra, diarrea infantil, disentería, infecciones urinarias, gastroenteritis, infecciones en el intestino, inflamación e infecciones con pus, fiebres tifoidea y entérica, entre muchas más.
La inserción en el mercado de gabinetes herméticos, los cuales cierran perfectamente, impedirá el acceso de estas plagas a los productos almacenados, de esta forma el factor de seguridad de los clientes y la calidad tanto de los productos como de los usuarios se mantendrán en condiciones óptimas.
También se impediría las secreciones y/o fluidos de cualquier índole que puedan perjudicar el estante.
Especificaciones:
Desarrollar este tipo de gabinete no sería cambiar la forma física ni el tamaño, se trataría de, al gabinete ya existente, incrustarle un material que al hacer contacto cuando se cierre quede sellado de manera que ningún insecto pueda entrar. Para la confección, se agregaría un tipo de plástico, que funcione como goma hermética, en todas las orillas de las puertas del gabinete.




Resumen
El objetivo de este proyecto es estimular a que la empresa Danilo Decoraciones (SADOSA) innove en el diseño de estantes móviles para almacenar utensilios de cocina en un espacio reducido y de cómodo acceso para el destinatario o usuario, diseñadas para soportar cargas ligeras o moderadas. Se propone realizar una serie de detalles, de manera que se pueda aprovechar el espacio al máximo, teniendo en cuenta un diseño diferente o único y que resulte de fácil acceso.
Algunos propósitos claves de la realización de este proyecto son:
· Tener mejor acceso a los productos culinarios.
· Ahorro de espacio en la cocina para facilitar las tareas del hogar y aprovechar tiempo.
· Reducir las frustraciones de los usuarios de la cocina a la hora de búsqueda, ya que se facilitará una herramienta de almacenado de utensilios organizada y fácil de usar.
Alcance del Proyecto
Una de las problemáticas encontradas, de las cuales trataremos de solucionar, es la poca organización y todo el espacio físico que se desperdicia en las despensas, desaprovechando gran parte de este, según se expresaron los usuarios encuestados.
Para esto queremos aprovechar el espacio que se desperdicia usualmentente en las esquinas, lugar donde visualizamos nuestro estante móvil. Este constará con una serie de niveles redondos, los cuales girarán en ambas direcciones, para mejor facilidad a la hora de selección de los productos.
El principio de lo planeado es que la base, la cual será resistente, se pueda mover y rotar, así como cada uno de sus niveles; también el estante en sí constará con ruedas especiales para que el usuario pueda trasladar el artefacto al lugar donde el usuario crea más conveniente, pero estaría diseñado para que este fuera en una esquina.
Especificaciones:
Partiendo de la problemática explicada anteriormente, hemos tenido la idea de diseñar un estante que tenga un sistema de rodamiento, y que este se encuentre dentro de un armazón, el cual visto desde una vista superior seria triangular, la cual protegería la estructura en sí, para una mejor adaptación a las esquinas de la vivienda, y por dentro de este se encuentren los niveles pudiendo girar 360 grados. Tendría una altura de 70 pulgadas, diámetro de 28 y profundidad de 25 pulgadas.




Resumen
El objetivo principal de este proyecto es incitar a la empresa Danilo Decoraciones S.R.L. a que realice innovaciones en productos relacionados con el área de la medicina. Como uno de los productos fundamentales que realiza esta empresa son los gabinetes, estos podrían tomar un giro y ser orientados al área de la salud, así insertando en el mercado estantes médicos donde de se puedan almacenar equipos o medicamentos importantes.
Entre los objetivos del proyecto se encuentran:
- La realización de un gabinete especial en donde guardar medicamentos con una organización sencilla y clara para el rápido alcance de estos en alguna circunstancia de emergencia.
- Impedir el alcance de estos medicamentos a niños, personas con algún tipo de depresión, fuera de un estado de coherencia mental o cualquiera que no esté apto/capacitado para su manejo.
Alcance del proyecto
A la hora de ciertos tipos de emergencia las provisiones médicas del hogar resultan esenciales. Todos los padres y madres tienen reservado un lugar para el aprovisionamiento de medicamentos de todo tipo, que van desde pastillas para el dolor de cabeza, jarabes para la gripe hasta talvez pastillas diarias de alguna enfermedad severa.
La falta de conocimiento provoca que muchos accidentes en el hogar sean ocasionados por el mal uso de estos medicamentos, ya sea que se confundan de frasco o que sean ingeridos por alguna persona no apta, dígase niños o alguien fuera de su sano juicio, lo cual puede causar intoxicaciones llevando a hospitalizaciones serias e incluso la muerte.
Según un estudio realizado por la investigadora principal, la Dra. Lindsey Burghardt, de la división de medicina de emergencias del Hospital Pediátrico de Boston se descubrió que entre 2000 y 2009 las tasas de consumo infantil de los medicamentos para adultos habían aumentado lo cual está directamente relacionado con el número de adultos que toman medicamentos con receta, también el estudio mostraba que se ha incrementado el número de niños que se intoxican accidentalmente con ellos.
Cada año, más de 34.000 niños en Estados Unidos van a la sala de emergencias porque ingieren accidentalmente medicamentos recetados, como los analgésicos opioides y pastillas contra la ansiedad, según otro estudio. Doce medicamentos representan casi la mitad de estas hospitalizaciones, encontraron los investigadores. Los opiáceos y benzodiacepinas (utilizados para reducir la ansiedad) son los tipos de medicamentos que más comúnmente envían los niños en el hospital, según este estudio.
También el mayor riesgo de uso indebido de medicamentos por parte de los adolescentes es el de los analgésicos narcóticos, los cuales la mayoría de las veces son para un uso recreativo o como intento de suicidio.
Este proyecto ofrece la creación de un estante en el cual se pueda guardar pastillas y medicamentos de gran importancia, para que a la hora de una necesidad médica se pueda tener un acceso sencillo y rápido a ellos, y poder impedir que estos caigan en las manos equivocadas.
Especificaciones:
El desarrollo de este diseño se confeccionaría en madera. Tendría varios compartimientos (tres niveles) para organizar la medicina, estas estarían organizadas por colores verde, amarillo y rojo. En el verde se guardaría la medicina general y la meno peligrosa, estaría en el primer nivel (acceso rápido), en el amarillo se guardaría la medicina recetada (que se toma diario) pero que no sean generales, estaría en el segundo nivel (acceso medio) y en el rojo se guardaría la medicina más peligrosa que solo personas en específico tengan acceso a ella, estaría en el tercer nivel (acceso limitado).



Acta de constitución de proyecto
Las diferentes oportunidades seleccionadas pasaron por un proceso de análisis, el cual hicimos junto con la secretaria administrativa, Yuleydis Santos y el asistente administrativo, Aneudy de los Santos, donde complementamos con las informaciones obtenidas de la encuesta realizada a 30 usuarios comunes de estantes y/o gabinetes de cocina.
Aquí pudimos observar que, de las ideas propuestas, dos tienen la mayor popularidad, oportunidades en el mercado y factibilidad en su desarrollo, las cuales son el estante hermético y el medicinal. Combinando las ideas llegamos a la conclusión de que puede resolver la mayor cantidad de las necesidades analizadas anteriormente.
A continuación, se presentará un Project Charter o un Acta de Constitución de Proyecto, en la cual se detallan cada uno de los aspectos fundamentales y cruciales de este proyecto.







Investigación de mercado y necesidades del consumidor final
Bajo el alcance definido en el Project Charter, se siguieron pautas y procedimos a realizar una investigación del mercado donde se identificaron los usuarios, clientes y competencia de la empresa con la que trabajamos para fines de la identificación, priorización y validación de las necesidades del consumidor final.
Planteamiento del problema
Este es fundamental la delimitación clara y precisa del objeto de la investigación. Para llevar a cabo el planteamiento de un problema hay que tener en cuenta tres elementos que están relacionados entre sí, estos son: Objetivos, Preguntas de investigación y Justificación del estudio. A continuación, se desglosa cada uno.
Objetivos
Antes de realizar la investigación de mercado declaramos nuestros objetivos, tanto generales como específicos, debido a que constituyen una base importante para juzgar el resto de la propuesta y además facilita la estructuración de la metodología. Los objetivos son los siguientes:
· Objetivo general
Ø Tener una noción clara de las necesidades y gustos de los clientes para aumentar el grado de satisfacción de los mismos.
· Objetivos generales
Ø Identificar el grado de satisfacción de los clientes con respecto a los gabinetes actuales.
Ø Conocer los cambios que los clientes desean efectuar en dicho producto.
Ø Sugerir la inserción de un rediseño de los gabinetes convencionales.
Preguntas de investigación
Confeccionar las preguntas de investigación es el primer paso para comenzar una investigación, si no tenemos identificada dichas preguntas divagaremos y perderemos mucho tiempo y energía. Cabe destacar que estas preguntas son la meta que buscamos responder y fueron nuestra guía durante todo el proceso de investigación. Las preguntas que utilizamos para la recolección de datos fueron las siguientes:
1. ¿Qué le gusta de los gabinetes que están actualmente en su cocina?
2. ¿Qué le disgusta de los mismos?
3. ¿Para que utiliza los gabinetes de la cocina?
4. ¿Qué aspecto le cambiaria a los gabinetes tradicionales?
5. ¿Le parece bien el tamaño de los gabinetes que actualmente están en su cocina?, ¿Sino que le cambiaría?
6. ¿Cuáles son las condiciones en las cuales ponen sus productos farmacéuticos?
7. ¿Qué opina sobre un gabinete hermético especializados para almacenar productos farmacéuticos?
8. ¿Le parece útil esta innovación? ¿Porque?
9. ¿Algún comentario adicional u opinión?
Justificación de la investigación
En esta ocasión consideramos necesaria la realización de una investigación de mercado, ya que nos permite tener una noción clara de las necesidades y gustos del cliente.
Esta investigación nos permite generar un diagnóstico acerca de los recursos, oportunidades, fortalezas, capacidades, debilidades y amenazas de una empresa o que un producto puede ofrecer.
Es debido a todo esto que decidimos indagar más a fondo sobre las problemáticas de los clientes, ya que a través de esta se puede conocer las necesidades del cliente, basándonos en el concepto de público objetivo, identificar los diversos tipos de consumidores, el proceso, atributos y demanda de compra, analizar la competencia, tanto la directa como la indirecta, el grado de satisfacción de los clientes, los riesgos y factores claves de éxito, lo cual en conjunto nos ayudarán a discernir sobre qué medidas tomar a la hora de insertar un rediseño en los gabinetes tradicionales.
Levantamiento de Información
Metodología de la investigación: recolección de datos
Para la obtención de información utilizamos diversos métodos. En primer lugar, buscamos información en el libro “Diseño y desarrollo de productos” de los autores Karl Ulrich y Steven Eppinger como referencia para la implementación de las informaciones que nos ofrecen los autores para la realización del trabajo.
Decidimos usar otros métodos de recopilación de datos sin procesar de los clientes, aparte de las encuestas realizadas en el paso anterior, estos métodos son las entrevistas y grupos focales, usados como forma de validación de las informaciones antes recolectadas.
Procedimos a identificar variables cualitativas como son: el color, la funcionalidad y el diseño; variables cuantitativas como: alto, ancho, peso, temperatura, profundidad y frecuencia de uso, las cuales resultaron de interés para este proyecto a la hora de tomarlas en consideración junto con las respuestas de los usuarios.
Definimos como usuarios líderes a las madres, jefas de hogar quienes, comúnmente, son las encargadas de la organización estructurada y funcional de los hogares dominicanos.
Los usuarios comunes los definimos como personas relacionadas a estos gabinetes de forma directa e indirecta, pero que no recaen sobre ellos responsabilidades u obligaciones, son normalmente personas jóvenes, tomamos en consideración a nuestros hermanos, primos, tíos y amistades.
Las herramientas que utilizamos para la obtención de información fueron: entrevistas realizadas personalmente a varias usuarias líderes y vía web, correo electrónico: Gmail y Hotmail, a una muestra de 15 usuarios comunes.
Realizamos un pequeño grupo de enfoque (focus group) donde discutimos temas importantes y cruciales para el proyecto, Gina Ferrera desempeñó el papel de moderadora.
Esto nos sirvió como referencia para el entendimiento de la metodología utilizada en el mercado gabinetes para cocina. Las preguntas y opiniones que discutimos en la entrevista y en el grupo focal las debatimos para analizar la información obtenida.
*El modelo de entrevista usado junto con las grabaciones de audio de las entrevistas a las usuarias líderes y la del grupo de enfoque (focus group) le será adjuntado.
Interpretación de datos sin procesar
A la hora de interpretar los datos sin procesar, recolectados por medio de entrevistas, encuestas y grupos focales, en término de las necesidades de los clientes cada frase expresada la traducimos en cualquier número de necesidades del cliente.
Algunos indicios u observaciones fueron consideradas como necesidades potenciales, las cuales se han expresado en términos de lo que el producto tiene que hacer, no en términos de cómo puede hacerlo, así como también expresamos la necesidad tan específicamente como la información originalmente recopilada. Utilizamos enunciados en forma afirmativa, no en forma negativa y expresamos la necesidad como atributo del producto, también tratamos de evitar las palabras debe y debería en los enunciados.

Análisis de mercado
Establecimiento de las necesidades
Las necesidades que nos inspiraron a realizar éste proyecto hermético que protege a los productos fármacos fueron:
· Los gabinetes herméticos necesitan mantener un control de temperatura adecuado para los medicamentos de alto cuidado.
· Necesidad de confort a la hora de la utilización de tipos de gabinetes en el aferre, posicionamiento y una distancia apropiada para un tamaño estándar.
· Se necesita material más reutilizable y aprovechable para reconsiderar, proveniente de fuentes de suministros sostenibles para que sea persistentes, con colores que sean neutros que no necesiten de mucha atención en la limpieza per que no deje de ser llamativo para el cliente.
· El espacio debe ser adecuado para adaptación de cada hogar y su peso no muy ligero como para no resistir en un intervalo de tiempo prolongad pero que demuestre calidad para sostener los productos y ser perdurable (buena capacidad de carga).
· Gabinete con diseño más amplio en el interior tal como la profundidad y no el tamaño del producto para la administración de los medicamentos.
· El gabinete puede incluir fuentes de ventilación para los productos farmacéuticos que necesitan temperatura ambiente.
· Paneles y puertas de bloqueo para la seguridad del equipo.
· Que sea de fácil acceso para éstos productos tan importantes para el cliente.
· Que el gabinete sea de fácil, rápida y eficaz ensamble de las piezas que puede tener.
· Debe contener una estructura interna organizada que pueda ser mucha utilidad a la hora de una emergencia. Éstos productos deben ser organizados por los siguientes ordenamientos:
1) Ordenamiento alfabético, según el nombre genérico.
2) Por categoría terapéutica o farmacológica.
3) Clasificación por forma farmacéutica.
4) Según la frecuencia de uso.

Para éste tipo de evaluación, además de representarlas en el grafico anterior, categorizamos las importancias en puntos, mientras más puntos se encuentre es mayor el grado de importancia de la métrica.

Tipos de consumidores
Dentro del análisis de mercado es importante identificar los diversos tipos de clientes o consumidores, ya que estos son aquellas personas que intentan satisfacer alguna necesidad realizando la compra de cierto producto o servicio. Entre los consumidores de estantes o gabinetes medicinales están:
Consumidores líderes: Son aquellas personas que compran estantes por alguna necesidad latente, son fieles, toman riesgos y están dispuestos a tomar iniciativas en cuanto a innovación se refiera. Ej.: madres y padres, enfermeras, doctores.
Consumidores pasivos: Estos adoptan la innovación sólo después de que la mayoría lo haya hecho. Normalmente son los líderes de opinión de su entorno y su necesidad no es tan acentuada.
Consumidores recios al cambio: Son personas tradicionales, que adoptan la innovación sólo cuando viene impuesta por la tradición en sí misma y se caracterizan por ser conformistas.
Motivaciones de compra
Puesto que el deber de las marcas es conocer a sus clientes, es también su deber estar al tanto de las diferentes motivaciones de compra del consumidor. En el acto de compra influye una pluralidad de factores. El consumidor se enfrenta a múltiples motivaciones a la hora de decantarse por la compra de uno u otro producto.
Prestigio: el cliente busca lo mejor de lo mejor.
Necesidades básicas: el consumidor tiene que satisfacer las necesidades del día a día.
Conveniencia: el consumidor necesita algo necesariamente importante como los medicamentos.
Escasez: el cliente compra un producto por su rareza u originalidad.
Cambios: ocasionalmente el cliente quiere algo para sustituir o innovar en su hogar.
Vacío emocional: hay casos en los que el cliente piensa que necesita algo que no es necesario para su consumo.
Estas son razones un tanto comunes que se pueden presentar a la hora de pensar en comprar un producto y que puede ser válido para dicha clientela. En Danilo Decoraciones S.A. cumplen solamente con los requisitos del cliente, pero tratamos de incorporar que ellos puedan estudiar más de cerca lo que un cliente le motiva a la hora de pedir el producto que queremos innovar, que es el gabinete hermético farmacéutico.
El proceso de compra del cliente
El proceso de compra para la empresa Danilo Decoraciones se compone de una serie de pasos que ayudan a la buena distribución del proceso de desarrollo del producto. En el primer paso la compañía identifica una necesidad, para la cual la respuesta es la compra de un producto. El paso final es la ejecución de un contrato de compra. Los pasos intermedios construyen un proceso organizado e informado que tiene como resultado que la empresa compre el producto correcto para cubrir su necesidad del cliente suficiente cuyo gabinete es el más duradero por el precio y calidad que puede ofrecer.
Los pasos siguientes ayudan a que el éxito de Danilo Decoraciones S.A se mantenga:
· Proyecciones de Procesos
· Tallado de Procesos
· Expediente de procesos
· Equipos de proceso
· Rediseño y mejora de procesos
· Indicadores de misión
Comportamiento y conducta del cliente en la compra
Según nuestro punto de vista, consideramos necesario adquirir conocimientos previos sobre los gustos del tipo de cliente que se trata con éste tipo de gabinetes, que pueden ser farmacias y mujeres del hogar.
El estudio del comportamiento del cliente proyecta varios conflictos para la empresa Danilo Decoraciones S.A. tales como:
- Las emociones internas, la sensibilidad promueve continuamente hacia reacciones no profundizadas, impulsivas, irreflexivas e incluso sin sentido común.
- Los clientes no suelen ser plenamente conscientes de por qué compran un producto o una marca.
- Los consumidores a menudo no queremos revelar la verdad.
- Con frecuencia intentan comunicar mucho más de lo que realmente saben por lo tanto se tantea a la hora de identificar sus necesidades.
- Los clientes pueden llegar a ser complejos.
Las decisiones de compra de los clientes son gran detalle para descubrir qué compran, dónde compran, cómo y cuánto compran, cuándo compran, y porqué compran las cuales son unas de las múltiples preguntas que se puede sacar del análisis de un cliente.
Con la intensión de interpretar las necesidades del cliente que proporcionan su atención al producto que se lanza al mercado se encuentran diversos aspectos, tales como:

El cambio tecnológico es una de las principales variaciones, la cultura y tradiciones por igual para la sociedad actual a la cual se enfrentan las empresas, la constante evolución de éstos factores ha provocado un cambio en las costumbres del cliente para las compras del mercado y por consiguiente las empresas deben estar al tanto de sus clientes con una atención y participación en la realización de los productos que se quieren lograr sacar al mercado, no solo sería ofrecerles bienes y/o servicios, sino más bien estilos de vida. Gran parte de esto genera el comportamiento y necesidades a los clientes los cuales causan una evolución e innovación continua a la hora de crear un producto, por éstas razones en Danilo Decoraciones S.A. tratamos de implementar nuevas tecnologías acordes a sus avances y el avance del producto que queremos desarrollar y las metas que se quieren cumplir en un gabinete especializado en la protección de productos fármacos.
Atributos en la Compra
Es imprescindible determinar por qué razones compra el cliente, determinar los criterios que condicionan las decisiones de compra del público, debido a que dichos criterios determinan las preferencias de los clientes entre los distintos productos o servicios.
Entre algunos atributos de compra de clientes objetivos podemos mencionar:
Necesidades básicas: el consumidor tiene inevitablemente que llenar la nevera.
Conveniencia: necesita algo urgentemente en un momento concreto y compra lo que tiene más a mano.
Escasez: el consumidor compra un producto por su exclusividad o porque sus existencias son ya muy limitadas.
Prestigio: el consumidor compra un producto para ganar algún prestigio.
Buena relación calidad-precio: el consumidor no necesita en realidad el producto, pero lo termina comprando porque su relación calidad-precio es buena, piensa que es una “ganga”.
Moda e innovación: el consumidor compra un producto porque está de moda y todo el mundo habla de él.
Presión: las compras son a veces motivadas por la necesidad de estar a la altura del resto. La gente compra lo que tienen también sus amigos.
Solidaridad: el consumidor compra un producto porque cree que haciéndolo está contribuyendo a una buena causa.
Adicción: El consumidor es adicto a un artículo determinado.
Temor: en algunas ocasiones el consumidor compra algo simplemente para sentirse más seguro y dejar de temerle a algo.
Gusto propio: el consumidor compra un producto simplemente por darse el gusto de hacerlo.
Análisis de la Competencia
Analizar la competencia no solo nos ayuda a estar prevenidos ante los nuevos movimientos realizados por nuestros competidores, sino también aprovechar sus desventajas o debilidades, hacer frente a sus virtudes o fortalezas, tomando como referencia sus productos o las estrategias que les estén dando buenos resultados, para poder implementarlas, modificarlas y mejorarlas, superándolos.

Es por esto que analizamos a la competencia directa de Decoraciones Danilo S.R.L., la cual es la empresa Roa Industrial C. por A. (ROICA), quien es en República Dominicana y el Caribe, la primera empresa en la fabricación de muebles modulares para cocinas. Inició sus operaciones en el año 1983 bajo la modalidad de un taller de ebanistería, proyecto que se extiende hasta finales de la década de los 80, y al inicio de los 90 comienza a transformarse en una empresa industrial especializada en la fabricación, diseño e instalación de cocinas modulares, creando la marca ROICA, que ya había logrado un posicionamiento importante cuando en el país cuando se empezaran a introducir las cocinas modulares importadas.
Hoy día la marca ROICA se consolida como líder en el mercado nacional, además de exportar a Puerto Rico, Estados Unidos, Curazao, Trinidad y Tobago y otras islas del Caribe, con una muy buena aceptación.
Los productos ROICA son elaborados con la más avanzada tecnología de fabricación, materiales de alta calidad y resistencia, maderas sólidas utilizadas de manera natural con aplicaciones de tintes, colores y revestimientos que se han sido introducidos para dar opciones a cliente personales y a clientes corporativos que manejan los grandes proyectos residenciales, que requieran de un atractivo producto adaptado para cada necesidad.
Constantemente Roica está en búsqueda de nuevas soluciones para cada una de las necesidades y gusto de los clientes, a través de sus modernas e innovadoras catálogo de productos y líneas de Cocinas Modulares, Muebles para baños, Walk-in closets, Puertas residenciales. Además, los accesorios que las complementan como son los Organizadores, Topes de granitos, Mármoles, entre otros materiales de altísima calidad que ofrecen en madera de Maple, Roble, Caoba, Andiroba, también MDF y Melaminas.
Decoraciones Danilo S.R.L. tiene una fuerte competencia en el mercado ya que Roica realiza productos similares a los suyos y trabajan en los grandes proyectos residenciales (fuente de trabajo principal de DADESA), lo cual los obliga a tener que analizar sus virtudes y fallas constantemente para poder tomar las mejores decisiones en cuanto a sus estrategias de trabajo y de ventas.
Entrevistas
Para realizar las entrevistas y hacer la recolección de datos más objetiva nos guiamos por algunas variables clave, tanto cualitativas como cuantitativas, estas variables son calificadas como variables estadísticas, debido a que pueden medirse, observarse y se obtienen de mediciones en algún tipo de experimento aleatorio. Las variables que tomamos en consideración fueron: Color, funcionalidad, diseño, temperatura, profundidad, frecuencia de uso y dimensiones. A continuación, se muestran algunos de los resultados obtenido.




A partir de las necesidades encontradas realizamos un análisis de la información recopilada que nos permitió la formulación de las especificaciones y requerimientos que el producto en desarrollo debe cumplir para ofrecer las soluciones más óptimas a las necesidades de los usuarios/clientes.
Una vez que realizamos la investigación de mercado e identificamos las necesidades del consumidor final, procedimos a realizar las especificaciones y requerimientos del producto final
Las especificaciones representan de forma clara todas las características y los materiales de los productos. Estos incluyen requisitos para la conservación de dichos productos, su empaquetamiento, almacenaje, así como los procedimientos para determinar su obtención exitosa y medir su calidad.
Especificaciones y Requerimientos del producto final
Grado de importancia de necesidades establecidas
Para poder establecer especificaciones del producto, las cuales representan una base sobre lo que el producto deberá hacer para satisfacer las necesidades del cliente, especificamos la importancia de cada una de las necesidades establecidas y a consecuencia de esto precisamos, para una mayor claridad, métricas del producto y le asignamos valores correspondientes.
Para medir el grado de importancia de las necesidades establecidas tomamos un rango de valores del 1–5 en donde el 5 indica el mayor grado de importancia.

Especificaciones
Métricas y Necesidades
Partiendo de las necesidades previamente establecidas elaboramos, con ayuda de DADESA, un conjunto de métricas que nos servirán de guía para establecer las especificaciones del producto, cabe destacar que este método involucra a los usuarios y a los puestos directivos en su desarrollo, en sus puntos decisivos.
Fue muy grata la participación de la empresa debido a que, al estar diariamente trabajando con gabinetes y estantes, saben exactamente lo que requiere el cliente, conocen las especificaciones y requerimientos que estas deben de cumplir. Partiendo de la orientación que se nos fue brindada elaboramos las métricas que se presentan a continuación.

Justificación de las métricas
Hermeticidad
Entre las entrevistas realizadas, una necesidad encontrada fue la utilización de materiales herméticos en la confección de despensas tradicionales. Esto ofrece seguridad y permanencia de la integridad de los productos almacenados. Al construir despensas herméticas se restringe el paso de líquidos, materiales contaminantes o bichos ya que esta tiene la funcionalidad de cerrar perfectamente.
Espacio suficiente
La obtención de una despensa significa asegurar un espacio en donde almacenar diversos productos del hogar. Diagnosticamos que una despensa debe de contar con el espacio suficiente para almacenar los productos de una manera organizada, estructurada y de fácil acceso para el usuario. El espacio en una despensa está relacionado directamente con variables el ancho, la altura y la profundidad.
Ancho
La anchura es una medida básica en la realización de cualquier tipo de mueble o producto, ya que especifica la amplitud o espaciosidad utilizable. Al conocer esta podemos determinar cuánto espacio se utiliza para la colocación de los productos almacenados, la distribución de los espacios, tipos de personas que puedan utilizarlos.
Alto
La altura es una dimensión importantísima a la hora de la realización de una despensa. Esta fue tomada en tomada en cuenta debido a la dificulta de los usuarios en el momento de obtener los productos que se encontraban almacenados en las partes más altas de las despensas.
Profundidad
Medir la profundidad de un estante es una característica importante a tomar en consideración en su creación ya que al conocer la distancia entre el fondo y un punto tomado como referencia se conoce el espacio destinado a almacenar los productos.
Rango de Temperatura
La temperatura es una propiedad de la materia que está relacionada con la sensación de calor o frío que se siente en contacto con ella. Al ser una magnitud esta puede ser medible. Un estante es un producto que debe almacenar productos a una temperatura ambiente estable para asegurar la integridad de los productos almacenados. Consideramos vital para nuestro proyecto que pueda mantenerla.
Capacidad de soporte
Es necesario conocer que tanta capacidad de soporte tiene un estante ya que así se sabe que tanta carga pueden aguantar. Esto debe ser definido para dar al usuario conocimientos para poder hacer un buen uso del producto y no tenga complicaciones.
Área
El área es un concepto métrico que permite asignar una medida a la extensión de una superficie, expresada en unidades de superficie; es un concepto métrico que requiere que se defina el espacio. Es necesaria definirla para conocer el espacio utilizable en donde se pondrán los diversos objetos.
Distribución del espacio
La distribución de espacio busca contribuir al incremento de la eficiencia a la hora de realizar las actividades en los estantes o gabinetes. Cuando se tiene una buena organización y distribución se facilita la tarea de encontrar el objeto buscado. Es necesario definir esta variable, ya que con la misma se pretende aumentar el grado de satisfacción de los usuarios.
Resistencia del material
Los estantes deben de tener una larga vida útil. Determinar la resistencia de materiales nos permite estudiar las deformaciones producidas por las fuerzas aplicadas, causadas por esfuerzos cortantes, de flexión o de torsión. En esta ocasión, el tipo madera que se utilizará para fabricar el estante nos proporcionará la resistencia.

Comparación con la competencia
Para determinar el éxito comercial de un nuevo producto, la relación de este con productos de la competencia es de suma importancia. Utilizamos las especificaciones objetivo como el lenguaje utilizado para analizar y establecer el posicionamiento del producto respecto a los demás productos ya existentes.
En esta parte del proceso analizamos en forma de comparación los productos de la competencia utilizando diversas métricas. Entre los productos analizados están el Módulo Base con 4 Gavetas, la despensa 2P 3G, la despensa 4 gavetas, despensa especial para horno, de la empresa Roica Industrial. Estos fueron elegidos ya que consideramos que tienen cierta similitud con nuestro proyecto de desarrollo.

Muestra de productos comparados

Módulo Base con 4 Gavetas
El diseño de esta despensa fue creado con el propósito de utilizar el espacio de una manera eficiente; posee un diseño convencional conformado de 4 gavetas en donde el espacio se distribuye de manera equitativa, convirtiéndola en uno de los tipos más populares.

Es un tipo de despensa muy utilizado donde el aprovechamiento del espacio es esencial, ya que consta con diferentes divisiones que para los diferentes productos; constan dos puertas y tres gavetas diferentes.

Despensa 4 gavetas
Esta es una despensa con un diseño tradicional conformada por 4 gavetas, diferentes productos se pueden almacenar en sus diferentes dimensiones de dos tamaños distintos. La estructura es de acorde a una estatura promedio y consta de una simetría.

Despensa especial para horno
Esta despensa se utiliza para guardar los hornos o microondas los cuales nos hacen la vida más fácil al calentar rápidamente los alimentos; este brinda protección y proporciona un soporte estable.
Realizamos una tabla sobre el benchmarking (comparación con la competencia) para analizar las características de potenciales competidores; donde las filas corresponden a las necesidades del cliente y las columnas a los productos de la competencia. Esta tabla se utiliza para hacer comparaciones entre el grado en que estos productos satisfacen las necesidades de los clientes y determinar las satisfacciones óptimas. Se utilizó un rango del 1 al 5 en donde el 5 indica el mayor grado de satisfacción, estos se indicarán con puntos.

Valores meta ideales y marginalmente aceptables
Con la intención de resumir las informaciones obtenidas anteriormente para establecer los valores objetivos de la métrica, utilizamos valores ideales y valores marginalmente aceptables; donde un valor ideal es el mejor resultado que podemos esperar y un valor marginalmente aceptable es el valor de la métrica que apenas haría viable el producto desde el punto de vista comercial. En esta tabla se establecen las fronteras del espacio competitivamente viable del producto, en otras palabras, se establecen las especificaciones del producto.
Para la creación de estas fronteras nos guiamos de la ayuda de expertos con años de experiencia en el área de la ebanistería de la empresa patrocinadora Danilo Decoraciones S.R.L. y en el benchmarking (comparación con la competencia) antes realizado, donde evaluamos los productos de los competidores a partir de las necesidades y métricas.
Las especificaciones establecidas se muestran en la siguiente tabla:

Análisis en RCA y las 5 M.
En éste proceso pudimos determinar y encontrar los problemas que afectan a nuestro producto para su creación y asociación con la empresa Danilo Decoraciones S.A., para que se pueda crear una estrecha relación con nuestro producto y la adaptación del mismo en la empresa con respecto a su desarrollo y proceso.
Para ésta parte se resalta como indagamos para la solución de los problemas que se nos presentan a la hora del proceso del proyecto. Utilizamos como recomendación el análisis de causa-raíz y las 5M (método, máquina, medio ambiente, manos de obra y materia prima).
para poder hacer análisis profundo de las diferentes variables que puede presentar nuestro producto.
Hicimos énfasis en la metodología de cada técnica trabajando los problemas y soluciones de dos maneras distintas ya que ambas técnicas se relacionan entre sí con su contenido:
Diagrama de las 5m

Diagrama de análisis causa raíz

La casa de calidad
La Función de Despliegue de la Calidad (QFD o Quality Function Deployment) conocida también como la Casa de la Calidad, es una popular herramienta de apoyo para el diseño de productos y servicios utilizada en el ámbito de la gestión de calidad. Esta nos permitió, a través de una serie de matrices en su forma gráfica característica como si fuera una casa, relacionar el pensar del cliente con los requisitos técnicos de un producto.
A continuación, presentamos una serie de matrices donde se relacionan los datos recopilados con las diferentes variables encontradas, tomando en consideración su grado de importancia.

Después de la obtención de las especificaciones por el método de la casa de calidad definimos y generamos conceptos, establecimos una descripción aproximada de la tecnología, principio de trabajo, forma del producto y las especificaciones técnicas, ergonómicas y estéticas del mismo. Una descripción detallada de la forma en que el producto va a satisfacer las necesidades del cliente.
En el proceso de generación de conceptos velamos que cumplan con las especificaciones anteriormente presentadas, para después, pasar al proceso de selección y evaluación del concepto final, pudiente ser este uno de los conceptos evaluados a continuación o un hibrido de los mismos.
Generación de Conceptos
Aclaración del problema
Por el momento nuestro proyecto de desarrollo ha estado enfocado en la realización de un nuevo diseño para un modelo diferente de gabinete, el cual cumpla con las necesidades insatisfechas de los clientes y con las especificaciones propuestas anteriormente. Nuestro problema primordial es poder cumplir con estas necesidades insatisfechas y con las especificaciones en un solo modelo/concepto, el cual asegure un éxito de mercado para la empresa a la cual estamos trabajando, Danilo Decoraciones S.R.L.
Con el objetivo de generar una cantidad adecuada de conceptos consideramos necesario descomponer el problema presentado en subproblemas o partes más sencillas. Para desglosar los subproblemas utilizamos el método de descomposición presentado en nuestro libro de texto, donde se descomponen de manera funcional siendo representadas por una caja negra la función general de nuestro producto, las necesidades claves y las acciones del usuario.
Estos métodos son de gran utilidad para productos con funciones técnicas muy sencillas y tienen mucha interacción de parte del usuario, como es el caso que estamos analizando, la creación de un gabinete.
Descomposición por secuencia de acciones del usuario
· Altura asequible para el usuario
· Secciones para ciertos productos específicos
Descomposición por necesidades claves del usuario
· Distribución optima de objetos almacenados
· Temperatura adecuada
· Hermeticidad para las lozas
· Aumentar la seguridad
· Material resistente y de larga vida útil
Luego de un análisis de los subproblemas identificados, nos centramos en los problemas más críticos. Los subproblemas más críticos son los siguientes:
· Los gabinetes deben tener una altura más asequible.
· Deben contar con compartimientos para una mejor organización.
· Aumentar la seguridad para que el acceso sea limitado.
Diagrama funcional

A)
1. Compuertas colocadas de manera estratégica.
2. Debe tener profundidad para el almacenamiento.
3. Aumento del espacio.
B)
1. Guardar grandes cantidades de materiales.
2. Abstención de bacterias y moho.
3. Protección contra insectos.
4. Expulsión de olores mediante transpiración.
C)
1. Tope de seguridad
2. Cerrar el acceso a cualquier usuario de los materiales peligrosos.
3. Almacenaje de distintos códigos.
4. Personalizar la clave.
Buscar externamente
Los métodos de búsqueda externa que aplicamos en nuestro proceso de desarrollo de conceptos fueron: la realización de una encuesta orientada a los conceptos a usuarios líderes, los cuales son usuarios que experimentan estas necesidades con meses o años antes que casi todo el mercado. La consulta a expertos (Los cuales tienen un conocimiento profundo de uno o más de los subproblemas; quienes no sólo pueden proveer conceptos de solución de manera directa, sino también redirigir la búsqueda en campos más provechosos). También buscamos literatura publicada de manera electrónica, ya que es la forma más eficiente de recopilar información y es una fuente fértil de soluciones existentes. Por último, realizamos otro benchmarking (estudio de productos existentes con funcionalidad similar a la del producto en desarrollo o a los subproblemas en los que está concentrado el equipo), ya que este puede revelar conceptos existentes para resolver problemas particulares, así como información sobre puntos fuertes y débiles de la competencia.
Consulta a expertos
Para llevar a cabo un buen proceso de generación de conceptos nos apoyamos en la opinión de expertos en el área los cuales nos ayudaron a dirigir la búsqueda en campos más provechosos. En lo siguiente se analiza la consulta a expertos, en la cual consultamos a Yuleidys Santos encargada de la parte administrativa de la empresa Danilo Decoraciones S.R.L. y usuarios del producto, logrando levantar una gran cantidad de información e ideas las cuales atacaban las necesidades tanto directa como indirectamente. Las preguntas realizadas fueron las siguientes:
o ¿Con qué intensidad se toman en cuenta las necesidades del cliente para el desarrollo de conceptos?
o De las especificaciones planeadas anteriormente, ¿Cuáles son más convenientes tomar en cuenta?
o ¿Qué tipos de materiales que nos recomienda para hacer el producto?
o ¿Qué dimensiones debería llevar el producto?
o ¿Para cuál especificación, si la llevamos a conceptos, hay que hacer una mayor inversión?
o ¿Para la fabricación de gabinetes se utilizan ensambles?
o ¿Qué clase de ensambles es conveniente utilizar?
o ¿Cuáles son las cosas que más les molestan a los clientes de las despensas hasta el momento?
o ¿Para qué tipo de clientes es preferible enfocar el producto?
o ¿Estudian sus clientes para saber que les gustaría agregar o esperan que estos se los digan?
Entre las ideas más importantes extraídas de esta fuente de información fue determinar los tipos de maderas convenientes que cumplan con los parámetros de nuestro producto siendo la caoba una muy buena opción tratando de implementar otros materiales a prueba de comején y que no permita la carcoma, el tamaño promedio de las despensas de la empresa entre las cuales pueden surgir varias oscilaciones permitidas, algunas de las insatisfacciones de los clientes.
Usuarios líderes
Con la directriz de identificar la opinión de los usuarios líderes, formulamos varias encuestas, las cuales estaban enfocadas en la generación de conceptos, para obtener la opinión de los clientes o usuarios. Consideramos que es de relevancia para este proyecto debido a que, como los usuarios lideres pasa mucho tiempo utilizando los gabinetes y estantes de la cocina, normalmente estos ya hayan inventado soluciones para satisfacer sus necesidades, conocer estas soluciones propuestas por los clientes le brinda u mayor enfoque a la generación del producto. Para recolectar esta información utilizamos una herramienta internacional de software especializada en la realización de encuestas, llamada e-encuestas. Tomamos una muestra de 30 usuarios, lo cual es la condición mínima para que un muestreo aleatorio presente confiabilidad, en el cual la mayoría de los participantes fueron adultos de entre 20 y 24 años (60.0%).
Concepto 1: Gabinete hermético
Según la información recolectada sobre este concepto, a la mayoría les pareció interesante (63.33%), les atrajo su alto nivel de funcionalidad (64.29%), su simplicidad y facilidad de uso (46.43%), les gustaría adquirirlo tanto en internet como en la tienda (53.58%), les gustaría recibir información tanto por internet como por televisión (57.14%) y el producto lo adquirirían cuando saliera a la venta un (60.3%) de los encuestados.
Concepto 2: Gabinete médico
Según la información recolectada sobre este concepto, a la mayoría les pareció interesante (74.67%), les atrajo su alto nivel de facilidad de uso (58.06%), les gustaría adquirirlo tanto en internet como en la tienda (67.74%), les gustaría recibir información por televisión (45.16%) y el producto lo adquirirían cuando saliera a la venta un (80%) de los encuestados.
Concepto 3: Gabinete móvil
Según la información recolectada sobre este concepto, a la mayoría les pareció interesante (70.9%), les atrajo que el mismo facilita el acceso (53.3%), les gustaría adquirirlo tanto en internet como en la tienda (56.67%), les gustaría recibir información por internet (53.33%) y el producto lo adquirirían cuando saliera a la venta un (70%) de los encuestados.
Concepto 4: Gabinete rotativo
Según la información recolectada sobre este concepto, a la mayoría les pareció interesante (61.11%), les atrajo tanto el aprovechamiento de espacio (45.71%) como la facilidad de uso (40%), les gustaría adquirirlo tanto en internet como en la tienda (57.14%), les gustaría recibir información por internet (43%) y el producto lo adquirirían cuando saliera a la venta un (29%) de los encuestados.
Luego de elaborar un análisis de las encuestas realizadas a los usuarios líderes, podemos afirmar que, según la información recolectada, las soluciones que muestran algunos de nuestros conceptos son bien aceptadas, consideradas necesarias y factibles, debido a que tomamos en cuenta variables que la mayoría de las competencias no abarcan. Es bueno que la empresa Dadesa Decoraciones S.R.L. innove o invierta con respecto a la publicidad de sus productos, pues la mayoría de los entrevistados no conocían la empresa y son personas activas con la tecnología, factor que, si se le da buen uso, puede llegar a hacer que la empresa sea un éxito.
Literatura publicada
Un método utilizado en la generación de conceptos de nuestro producto fue la búsqueda o consulta de literatura publicada de manera electrónica, ya que es la forma más eficiente de recopilar informaciones. En esta sección consultamos diferentes páginas web de empresas que fabrican productos parecidos al nuestro, artículos y catálogos internacionales de gabinetes con información técnica; nos concentramos en efectuar una buena búsqueda en la base de datos determinando palabras claves y limitando el propósito de la búsqueda.
Estas informaciones recolectadas junto con las encuestas realizadas a los usuarios líderes nos brindaron una gama de informaciones de gran utilidad para nuestra generación de conceptos.
*Las fuentes consultadas aparecen en la referencia bibliográfica.
Entre las soluciones generadas con esta herramienta fueron las siguientes:
o Crear espacios prudentes para evitar los choques.
o Retroceder zócalos 7.5cms del mueble tanto en altura como en profundidad.
o Fabricar el producto con un material más resistente.
o Fabricar el producto con materiales herméticos.
Patentes
La investigación de patentes nos sirvió como ámbito de conocimientos, ya que analizan productos funcionales ya estandarizados. Estas son una fuente rica y fácil que encontramos disponible llena de informaciones técnicas que contiene explicaciones de cómo funcionan los productos.
Investigamos algunas para tener conocimiento sobre ellas, como son los estantes de acero inoxidable de la marca Hoffman, fabricante mundial con una amplia gama de productos como Racks, gabinetes y charolas, diseñados con precisión respetando las normas más estrictas de calidad a nivel internacional, relacionados de cierto modo con nuestro producto de gabinete.


Benchmarking (comparación) de productos seleccionados
Procedimos a realizar un benchmarking con dos empresas que fabrican productos relacionados al nuestro para comparar las especificaciones objetivo ya establecidas con su proceso de diseño y desarrollo, observar posibles especificaciones que no han sido consideradas por nuestro equipo de desarrollo, establecer el posicionamiento del producto respecto a los demás productos ya existentes y determinar puntos fuertes y débiles de la competencia.
Las empresas con la cual hicimos la comparación fueron la empresa Roa Industrial (ROICA) e IKEA.
Utilizamos valores del 1 al 10 para comparar aspectos en las empresas comparadas con respecto a las especificaciones anteriormente planteadas. Siendo el 10 el mayor grado de si se toma en cuenta la especificación y si esta resulta beneficiosa tanto para los clientes como para la empresa.

Entre las soluciones generadas con esta herramienta fueron las siguientes:
o Crear un gabinete que tenga unas dimensiones adecuadas.
o Integrar secciones para una mejor distribución del espacio.
o Tomar en cuenta el factor temperatura a la hora del diseño.
o Incrustar sistema de seguridad.
Buscar Internamente
La búsqueda interna es el uso del conocimiento personal y del equipo, así como de creatividad, para generar conceptos de solución. A menudo es llamada “lluvia de ideas”, este tipo de búsqueda es interna debido a que todas las ideas que emergen de este paso son creadas a partir de los conocimientos que poseen los miembros de un equipo determinado. Es la actividad más abierta, extensa y creativa en el desarrollo de un nuevo producto.
El método que utilizamos para la generación de conceptos de forma interna es el brainstorming o su nombre en español “lluvia de ideas”, generando tantas ideas como fuera posible, sin descartar ninguna, aunque parecieran imposibles o no factibles, luego se realizaron bocetos rápidos para entender de manera gráfica lo que se deseaba lograr en el producto.
Procedimos a actuar como nos recomienda nuestro libro de texto y acordamos secciones tanto individuales, cada una es su respectiva casa, como de grupo, realizada en un curso del INTEC, en las cuales primero cada miembro trabajo sola ideando posibles soluciones para luego, al reunirnos examinar y mejorar cada concepto generado individualmente. En estos establecimos objetivos cuantitativos, usamos estímulos como las necesidades de los clientes y fotografías del ambiente de uso del producto, realizamos analogías, extrapolamos informaciones y realizamos un método parecido al de galería, solo que en vez de pegarlos a la pared de un salón los visualizamos todos en una pizarra, así fuimos dando sugerencias para mejorar cada concepto.
Referirse al anexo 4 para visualizar búsqueda interna y al drive para escuchar audio.
Explorar sistemáticamente
Como consecuencia de las búsquedas internas y externas hemos recolectado algunas soluciones a nuestros subproblemas, es por esto que realizamos una exploración sistemática, la cual está destinada a navegar el espacio de posibilidades y reunir estos fragmentos de solución. Tratamos de considerar todas las posibles soluciones de cada uno de los subproblemas encontrados, llevar esto al pie de la letra es casi imposible, pero hicimos las soluciones que pudimos, ya que muchas hasta carecían de sentido, organizamos el pensamiento en equipo utilizando herramientas para ello, tanto las descritas en el libro como externas.
Árbol de clasificación de la distribución

En el gráfico que se muestra a continuación, se aprecia la combinación de conceptos que realizamos en la búsqueda interna grupal y soluciones a los sub-problemas identificados.


Evaluar los conceptos
En este paso evaluamos los conceptos de manera individual e identificamos la problemática que se desea resolver con los conceptos y saber si son ideas potenciales para llevar a cabo.
Gabinete rotativo
Con el presente pretendemos solucionar la incomodidad que presentan algunos usuarios con relación a la altura y alcance de los productos. Cuando una persona de baja estatura quiere alcanzar alguna loza que se encuentra en la parte superior del gabinete, tiende a realizar movimientos bruscos e incómodos, los cuales además de ser anti ergonómicos causan contracciones involuntarias de los músculos (espasmos musculares).

Este concepto cuenta con tres compartimientos o platillos giratorios, los cuales tendrán movilidad para que el producto que este atrás pase adelante y viceversa. Otra problemática que intenta resolver este concepto es la profundidad, lo cual facilita el acceso y se aprovecha más el espacio.

Estante lateral
Con el presente pretendemos solucionar el problema de la organización estratégica. En la imagen se aprecia una idea de lo que sería este modelo de estante el cual consta de un estante fijo en la pared y una gaveta móvil que se jala de manera lateral y salen los compartimientos.
En este concepto se traspasa el objetivo del aprovechamiento de espacio deseado, ya que este concepto está formado por un compartimiento que al principio parece oculto, pero al abrirse se desliza y se despliegan muchos compartimientos para el almacenado de los productos que sean de preferencia para el usuario.
Este tipo de gabinete es muy práctico y funcional para el uso de alimentos que no necesiten refrigeración y para lozas que no sean muy grandes ni pesadas.


Estante móvil
Con el presente pretendemos solucionar la facilidad y comodidad a la hora de alcanzar los productos y la pérdida de tiempo que se genera durante el proceso de búsqueda del producto.
El estante móvil está confeccionado con el fin u objetivo de almacenar utensilios de cocina en un espacio reducido y de cómodo acceso para el destinatario o usuario, está diseñado para soportar cargas todo tipo de cargas, ligeras y moderadas.
Algunos propósitos claves que este concepto debe cumplir son:
· Tener mejor acceso a los productos culinarios.
· Ahorro de espacio en la cocina para facilitar las tareas del hogar y aprovechar tiempo.
· Reducir las frustraciones de los usuarios de la cocina a la hora de búsqueda, ya que se facilitará una herramienta de almacenado de utensilios organizada y fácil de usar.


Gabinete hermético
Con el presente pretendemos solucionar el problema de plagas, el cual es un problema latente en nuestro país debido al clima tropical que posee.
Otro punto a favor de este concepto es que aseguraría la durabilidad de los productos almacenados ya que impediría la inserción del aire, fluidos, animales o bichos a los mismos, y esto trae como consecuencia directa el buen mantenimiento de los alimentos y se evitan enfermedades.
El objetivo principal es velar por el aseguramiento de la durabilidad de los productos almacenados. Desarrollar este tipo de gabinete no sería cambiar la forma física ni el tamaño, se trataría de, al gabinete ya existente, incrustarle un material que al hacer contacto cuando se cierre quede sellado.


En esta parte del proceso de generación de conceptos nuestro equipo pudo observar cómo se generaron una gran cantidad de subconceptos aplicando los métodos adecuados, métodos mencionados anteriormente. Después que tenemos los conceptos generados, procedemos a seleccionar los conceptos, donde evaluamos los conceptos con respecto a las necesidades del cliente y otros criterios, comparando los puntos relativamente fuertes y débiles de los conceptos, y seleccionando uno o más de éstos para su posterior investigación, prueba o desarrollo.
Evaluación y selección del concepto final
Método para escoger conceptos
Para llevar cabo un buen proceso de selección de conceptos utilizamos algunos de los métodos que plantea nuestro libro de texto Diseño y Desarrollo de Productos de Ulrich & Eppinger. Utilizamos 6 métodos para que nuestro proyecto tenga un alto nivel de objetividad, estos fueron: Votación múltiple, Encuesta en internet, Pros y contras, Prototipo y prueba, Matrices de decisión, a continuación, se detalla cada uno.
Votación múltiple
La opinión de cada una es importante a la hora de seleccionar conceptos. Para tomar una decisión lo consultamos internamente y tomamos en cuenta el punto de vista de cada persona, algo de suma importancia debido a que como cada persona piensa diferente abarcamos los problemas y soluciones viéndolo desde varios puntos de vista.
El proceso de votación múltiple es un proceso democrático y, como en todo proceso democrático, la votación es parte importante del mismo. Para la selección del concepto cada una de las integrantes votó tanto por el diseño que más le convenció según su criterio, como por algunas características funcionales que deberíamos tomar en cuenta en la confección del producto final.

Encuesta en internet
Realizamos una encuesta en la plataforma titulada e-encuesta.com, sistema para crear encuestas online potente y fácil de usar, en la cual se especifica cada uno de los conceptos ideados y así determinar cuál concepto es de mayor agrado a los usuarios líderes, así como también cuales son las preferencias de estos o si surge el caso de hacer un híbrido entre varios conceptos de gran aceptación, con el fin de tener información para las mejores características en la toma de decisiones del producto final.
Según los resultados de la encuesta que realizamos sobre la selección del concepto, el concepto más atractivo es el gabinete medico con 63.33% de aceptación, la característica más importante es la prevención de accidentes con un 60% y le sigue facilidad a la hora del acceso con 46.76%, la mayoría de las personas están de acuerdo con la combinación entre conceptos, el hibrido más aceptado fue el gabinete con compartimientos especializados en medicina y con un sistema de seguridad (60%).
Después de analizar los resultados de las encuestas realizadas, podemos afirmar que los usuarios comunes oscilan entre 35 y 44 años, las características que buscan en el producto es la prevención de accidentes y facilidad de uso, por ende, están de acuerdo con la confección de un gabinete especial para medicina con seguridad para limitar el acceso.
Referirse al drive para visualizar resultados de la encuesta realizada con fines de selección de conceptos.
Pros y contras
En este paso se realizamos una tabla en donde enlistamos los puntos fuertes y débiles de cada uno de nuestros conceptos, ya que al declararlos y enlistarlos se lleva a cabo un análisis más profundo y enfocado en la selección del concepto final, el cual proporciona ayuda en la elección de la mejor decisión posible.
Nuestros 5 conceptos son:
Concepto 1: Gabinete hermético
Concepto 2: Gabinete médico
Concepto 3: Gabinete móvil
Concepto 4: Gabinete rotativo
Concepto 5: Gabinete corredizo

Prototipos y prueba
Los prototipos son una representación inicial con limitaciones de un producto, el cual sirve como modelo para la fabricación de los siguientes o como muestra permitiéndonos probarlo en situaciones reales y explorar su uso, creando así un proceso de diseño de iteración que genere calidad.
Debido a lo descrito anteriormente decidimos llevar acabo la implementación y la creación de prototipos a escala real; realizamos prototipos de nuestros cuatros conceptos preliminares con la idea de poder verificar la factibilidad del diseño de nuestro sistema realizando pruebas e identificando fallas para poder corregirlas a tiempo, ya que como sabemos el proceso de diseño de productos es totalmente iterativo.
Para la realización de estos utilizamos planchas de cartón Kraft, Papel vinil con diseños de madera para darle el efecto indicado, velas de silicona, palos, hielo seco y plástico.
A continuación, se muestran las fotos de los prototipos en cuestión:
Gabinete Hermético



Gabinete rotativo




Gabinete Lateral




Gabinete móvil


Referirse al drive para visualizar proceso de fabricación.
Matrices de decisión
Matriz de filtrado y selección
Pugh Matrix
El Pugh Matrix es un tipo de diagrama matriz que permite la comparación de conceptos candidatos de diseño líder en última instancia a la que mejor cumple con un conjunto de criterios. También permite un grado de optimización cualitativa de los conceptos alternativos a través de la generación de candidatos híbrido. Para la construcción de esta matriz identificamos y definimos claramente los criterios de selección tomando en cuenta los requisitos de diseño del usuario-cliente.
Los criterios que utilizamos para la evaluación fueron las necesidades del cliente, las cuales están previamente establecidas debido a que hemos estado trabajando con estas durante todo el proceso de desarrollo del producto. Los conceptos a evaluar son los siguientes:
Concepto 1: Gabinete hermético
Concepto 2: Gabinete médico
Concepto 3: Gabinete móvil
Concepto 4: Gabinete rotativo
Concepto 5: Gabinete lateral

Resultados obtenidos
Según la clasificación y evaluación hecha con la matriz obtuvimos los siguientes resultados:
El concepto 1 quedo en último lugar con una calificación total de 6, este concepto pertenece al gabinete hermético, con el cual pretendemos solucionar el problema de plagas y lograríamos asegurar la durabilidad de los productos almacenados ya que impediría la inserción del aire, fluidos, animales o bichos. Este concepto no tiene suficiente peso para confeccionarlo, puesto que hay otras necesidades bastante importantes que no cumplen este concepto. Este concepto no se llevará a cabo.
El concepto 5 está en penúltimo lugar con una calificación de 9, este concepto pertenece al gabinete lateral, con el cual nuestro objetivo es resolver el problema de la organización estratégica. Este concepto no se llevará a cabo debido a que hay puntos claves y necesidades primordiales que debe cumplir nuestro producto y, este diseño, no cumple con todos los requerimientos. Este concepto queda descartado.
Tanto el concepto 3 como el concepto 4 tuvieron una puntuación aceptable, 12 y 16, lo cual trae como consecuencia considerar estos conceptos como potenciales diseños, ya que abarcan algunos criterios que son importantes como: espacio suficiente, confort, fácil accesibilidad y buena distribución del espacio. Debido a la importancia de los criterios que cumplen estos conceptos, no se descartaran, se van a analizar de manera profunda para llevar a cabo la selección del concepto final.
El concepto 2 obtuvo la mejor puntuación dentro de los conceptos evaluados anteriormente, este abarca puntos bastantes críticos y cumple con la mayoría de los criterios, pero tiene oportunidades de mejora. Esta propuesta se encuentra en primer lugar, pertenece al concepto de un gabinete médico, cuyo objetivo es velar por la seguridad y limitar el acceso de los medicamentos para evitar la sobredosis por parte de niños y personas discapacitadas y una mejor organización a la hora del alcance del producto.
Posicionamiento de conceptos no descartados
En el siguiente diagrama se observa la posición de los conceptos potenciales, con respecto a las necesidades del cliente.

Evaluación de conceptos
En este apartado evaluamos los conceptos determinados mediante un método que utiliza una suma ponderada de las evaluaciones para determinar la evaluación de conceptos.
Se utilizaron los mismos criterios de selección asignándole un peso a cada uno tomando en consideración el nivel de importancia que anteriormente le fueron asignados, ya que el uso de relaciones jerárquicas es una forma útil de resaltar los criterios.
A cada uno de los conceptos se le dio una clasificación en base a una escala de 1 a 6 donde el 6 era la clasificación máxima. El concepto de referencia fue un gabinete tradicional de estantería y los conceptos evaluados fueron el gabinete hermético, gabinete médico, gabinete móvil, gabinete rotativo, gabinete corredizo.
Luego se realizó el cálculo de una evaluación ponderada, haciendo el producto del peso del criterio por la clasificación asignada, para obtener la calificación final se sumaron estos valores y a partir de los mismos se tomaron las decisiones pertinentes.


Según las informaciones que obtuvimos por medio de los levantamientos realizados, dígase encuestas, tablas y los diferentes métodos de selección llevados a cabo, hemos podido determinar que el mejor concepto a desarrollar sería un modelo tipo híbrido de algunos de nuestros conceptos preliminares, o sea una combinación de los conceptos 2, 3 y 4, los cuales fueron los más populares.
En concepto 2, el gabinete médico, tiene por objetivo guardar medicamentos con una organización sencilla y clara para el rápido alcance de estos en alguna circunstancia de emergencia, donde se pueda Impedir el alcance de estos medicamentos a niños, personas con algún tipo de depresión, fuera de un estado de coherencia mental o cualquiera que no esté apto/capacitado para su manejo, el concepto 3 o el gabinete móvil ofrece un mejor acceso a los productos culinarios, ahorro de espacio en la cocina para facilitar las tareas del hogar y aprovechar tiempo para así reducir las frustraciones de los usuarios de la cocina a la hora del proceso de búsqueda, ya que se facilitará una herramienta de almacenado de utensilios organizada y fácil de usar y por último el concepto 3 o gabinete rotativo ofrece satisfacer las necesidades de los usuarios de baja estatura brindándole comodidad a la hora de la obtención de los productos.
Estas fueron las cualidades principales de nuestros conceptos preliminares, los cuales además fueron los preferidos por los usuarios. La unión de las características principales de estos tres conceptos conformará uno nuevo, el cual pueda cumplir totalmente con el alcance de este proyecto de la manera más óptima y productiva.
Ordenar los conceptos
Ordenar los conceptos preliminares es una forma de evaluarlos de manera jerarquizada. La evaluación total para cada concepto es la suma de las evaluaciones ponderadas, las cuales se calculan al multiplicar las evaluaciones sin procesar por los valores de criterios de selección. Después de evaluar todos los conceptos, se introduce la suma de cada categoría, sumando los valores de cada una de las filas. Una vez hecha la suma, ordenamos los conceptos por mayor puntuación y cada uno de los conceptos recibió una evaluación u ordenamiento correspondiente a su evaluación total. Esto nos ayudó a distinguir si el concepto debe seguir desarrollándose o no.
Combinar y mejorar conceptos
Una vez evaluados y ordenados los conceptos pudimos verificar y darnos cuenta de que hay posibilidad de mejora si se combinan ciertos conceptos. Analizando las puntuaciones obtenidas de cada concepto se puede apreciar cómo podemos combinarlos según los requerimientos, tener la puntuación máxima y, por ende, el mejor producto. La matriz se puede representar de la siguiente manera:

Seleccionar uno o más conceptos
Según los datos que obtuvimos, seleccionamos un concepto que consideramos que es el mejor a desarrollar según el cumplimiento con los requerimientos. El concepto seleccionado es el del gabinete médico. Este concepto estará compuesto por tres niveles con varios compuestos o gavetas donde se organizarán los medicamentos según la prioridad establecida por el cliente y según el nivel de peligro que conlleva su alcance, lo que limitaría el acceso a usuarios no deseados.
Croquis del concepto que fue seleccionado para desarrollar, al cual nombramos como MediGab.

Una vez que hemos hecho la selección de los conceptos potenciales a desarrollo, procedemos con el siguiente paso, prueba de conceptos, donde utilizamos los métodos planteados por nuestro libro de texto para reafirmar nuestra decisión y estar completamente seguras de que el concepto a desarrollar cumpla con los requerimientos del cliente.
Prueba de conceptos
Definir el propósito de la prueba de conceptos
El propósito de una prueba de conceptos es verificar que el concepto o idea es susceptible de tener éxito, las dimensiones más comunes en las que se evalúan los conceptos son intención de compra y diferenciación. Este paso es crucial en el desarrollo de productos debido a que permite identificar si el concepto será un éxito o fracaso cuando se encuentra en fase inicial, y así evitar fracasos en el desarrollo una vez se haya hecho la inversión. También nos ayudós a determinar la viabilidad de nuestro producto en el mercado.
El propósito general es conocer la opinión del cliente y/o usuario para validar la selección del concepto previamente hecha y llevar a cabo la confección o desarrollo del producto. Para lograr obtener informaciones relevantes para este proceso, examinamos desde cinco puntos de vista que consideramos importantes:
Intención de compra. Donde medimos el grado de preferencia del producto. Es un dato declarativo por parte del público objetivo y, por tanto, no siempre se corresponde con las ventas reales, que reflejan el comportamiento sino, la intención.
Razón de interés. Donde investigamos las razones para la compra o adquisición del producto, tanto principales como secundarias.
Frecuencia esperada. Donde, con los datos obtenidos, estimamos que tan frecuente se comprará el producto.
Diferenciación. Donde se comparará nuestro producto con otros del mercado para obtener informaciones cruciales para nuestro proceso de desarrollo.
Solución al problema. Donde analizamos si el producto podría satisfacer las necesidades ya conocidas y las problemáticas que fueron presentadas.
Preguntas a contestar con la prueba
Para llevar a cabo la prueba del concepto, realizamos una encuesta para validar la selección del concepto final. Para la realización de este proceso formulamos preguntas lo más explícito posible para mayor comprensión de los entrevistados. Las preguntas utilizadas fueron las siguientes:
¿Cuál de varios conceptos alternativos debe perseguirse?
¿Cómo puede mejorarse el concepto para satisfacer mejor las necesidades del cliente?
¿Cuántas unidades es probable que se vendan, aproximadamente?
¿Debe continuarse el desarrollo del concepto?
¿Qué expresión describe mejor la frecuencia con que cree que comprará el producto?
¿Qué diferencia encuentra en este producto comparado con otros en el mercado?
¿Piensa que el producto podría satisfacer una necesidad o solucionar un problema actual y que otros productos no resuelven?
¿La descripción de este nuevo producto le pareció complicado o difícil de entender?
Escoger una población a encuestar
La población que escogimos a encuestar fueron los clientes potenciales y/o usuarios líderes, los cuales encontramos efectivos debido a que abarcan varios segmentos del mercado y le dan objetividad a la investigación. Hicimos una muestra aleatoria de 30 personas a los usuarios lideres potenciales.
Comunicar el concepto
Cuando comunicamos el concepto tratamos de explicar al máximo detalle el propósito y funcionalidad de este para que no quede ningún tipo de dudas ni cabos sueltos, que se puedan mal interpretar y distorsionar los resultados, emociones/grado de satisfacción, tanto de los clientes como del creador y los vendedores.
Los conceptos pueden ser comunicados en cualquiera de las siguientes formas:
• Descripción verbal: Una descripción verbal es generalmente un párrafo o una lista de enunciados que resume el concepto del producto. Esta descripción puede ser leída por quien responda o puede ser leída en voz alta por la persona que aplique la encuesta.
• Bosquejo: El bosquejo es aquel primer esbozo o elaboración inicial del boceto o diseño que se realiza de cualquier otra producción que involucre directamente a la creatividad humana, como ser una idea, un concepto, una iniciativa, entre otras. Los bosquejos suelen ser dibujos que muestran el producto en perspectiva, quizá con anotaciones de las funciones clave, como sus medidas, el material del que está hecho.
• Fotos e ilustraciones: Pueden usarse fotografías para comunicar el concepto cuando existen modelos con la apariencia del concepto del producto. Las ilustraciones son casi tan realistas como las fotografías del concepto; pueden elaborarse a pluma, con marcadores o usando herramientas de diseño asistido por computadora. La figura 9–5 muestra una ilustración del patín creada usando software de diseño asistido por computadora.
• Secuencia de imágenes: Una secuencia de imágenes es una serie de imágenes que comunica una secuencia temporal de acciones que hablan del producto.
• Simulación: Una simulación son ilustraciones tanto estáticas como dinámicas que simulan el comportamiento real o sea imita la función o características interactivas de un producto, fenómeno, suceso, hecho generalmente La simulación se pone en práctica con software de diseño asistido por computadora. El equipo de desarrollo de producto realizó una simulación en el software SolidWorks sobre nuestro concepto final, el Gabinete Medico (MEDIGAB), para verificar el diseño de este y su comportamiento.
• Prototipos operacionales: los prototipos operacionales o modelos pueden ser útiles en la prueba del concepto. Aunque el uso de prototipos operacionales es riesgoso. Ya que quienes respondan van a comparar el prototipo con el producto terminado.
En algunos casos, los prototipos funcionan mejor que el producto final (por ejemplo, porque el prototipo utiliza componentes mejores y más costosos como son motores o baterías). En la mayoría de los casos, el producto final funciona mejor que el prototipo y casi siempre el prototipo es menos atractivo a la vista que el producto final. El equipo de desarrollo del producto creo 4 prototipos operacionales iniciales de gabinetes.
Medir respuesta del cliente
Una vez que comunicamos los conceptos, pusimos a los clientes a elegir por el concepto de su preferencia para validar la selección de los mismos, la cual fue presentada anteriormente. Dentro de esta prueba tratamos de medir lo más objetivo posible varias variables claves para el desarrollo, dentro de las cuales están: intención de compra, razón de interés, frecuencia esperada, diferenciación y solución al problema.
Interpretar los resultados
Según los resultados que obtuvimos con las encuestas realizadas, el concepto ganador, al igual que en la selección, fue el gabinete medicinal, el 70% de los encuestados hizo énfasis en este concepto como el preferido, cumple con las necesidades establecidas. La idea principal que se nos fue sugerida para mejorar el concepto es mejorar la seguridad, el 66.67% de los encuestados estuvo de acuerdo en la inserción de esta mejora. La mayoría estuvo de acuerdo en que se siguiera con las siguientes etapas del desarrollo de ese concepto, aproximadamente el 70%.
Una vez interpretados los datos, podemos afirmar que el gabinete médico es el concepto clave a desarrollar puesto que cumple con la mayoría de requerimientos del cliente, a este hay que agregarle compartimientos para lograr una organización estratégica y brindar mayor comodidad al usuario. Este concepto tiene oportunidades de mejoras que fueron identificadas y mencionadas anteriormente y procedimos a llevarlas a cabo y tomarlas en cuenta a la hora de la confección del producto final.
Pruebas de Prototipos
Las Pruebas de Concepto es esa búsqueda entre el nuevo producto y como llega al consumidor, se busca con este establecer si los consumidores entienden el concepto, creen en las ventajas que se afirma y se establecen las sugerencias que ellos harían al producto. En esta investigación se obtuvo información que nos permitió determinar la orientación que debemos dar al producto, que cambios integrar y que orientación nueva pueda llevar el proyecto.
Gabinete Hermético


Con el presente pretendemos solucionar el problema de plagas, el cual es un problema latente en nuestro país debido al clima tropical que posee. El objetivo principal es velar por el aseguramiento de la durabilidad de los productos almacenados, incrustándole un material que al hacer contacto cuando se cierre quede sellado.
La característica principal de hermeticidad se tomó para la realización de nuestro producto final, aunque en menor grado que el antes planeado, ya que algunos medicamentos necesitan están en lugares frescos, lo cual se puede obtener con un menor grado de hermeticidad.
Una vez realizada la prueba pudimos observar que el usuario quedo, en parte, satisfecho con el concepto presentado. La mayoría estuvieron de acuerdo con la problemática que estábamos abarcando, puesto que en este país se sufre mucho de plagas y de enfermedades causadas por el contacto con las mismas. Este concepto tuvo una buena aceptación, pero no fue el favorito de la población ni el más demandado, por ende, decidimos aportar parte de este concepto en el producto final.
Gabinete rotativo


Con el presente concepto pretendemos solucionar la incomodidad que presentan algunos usuarios con relación a la altura y alcance de los productos. Este concepto cuenta con tres compartimientos o platillos giratorios, los cuales tendrán movilidad para que el producto que este atrás pase adelante y viceversa, teniendo como consecuencia directa el fácil acceso de los productos a personas de estatura promedio.
Según las pruebas realizadas, este concepto no tuvo mucha aceptación por parte de la población, estos alegaron que en los laterales de los discos hay un espacio considerable que no se está aprovechando y que sería de mucho provecho, otros aclaraban que esto no resolvía el problema y no cumple con las expectativas.
Este concepto fue descarto y no integrado a otro debido a que no tiene nada que llame la atención de los clientes ni satisface ninguna necesidad y/o problemática existente.
Gabinete Lateral


Con el presente se pretende solucionar el problema de la organización estratégica. Este concepto consta de un estante fijo en la pared y una gaveta móvil lateral que se jala de manera horizontal, dentro de esta hay varias divisiones o compartimientos que pretenden aumentar el nivel de organización a la hora de guardar los productos.
En este concepto el objetivo es el aprovechamiento de espacio, ya que este concepto está formado por un compartimiento que al principio parece oculto, pero al abrirse se desliza y se despliegan las divisiones. Aunque a nuestro parecer era un concepto potencial para llevar a cabo su desarrollo, la población piensa lo contrario. Según los datos recolectados durante la etapa de selección y de prueba, este concepto no resuelve de manera significativa las mayores problemáticas de los usuarios.
Como se muestra un descontento un tanto parcial con el concepto, se ha tomado la decisión de descartarlo y no llevar a cabo su desarrollo.
Gabinete móvil


El gabinete móvil, es un concepto creado para las esquinas. Este concepto cuenta con compartimientos móviles los cuales tienen varias subdivisiones que ayudan a aumenta la organización. Este concepto tiene un tamaño estratégico para evitar incomodidad a la hora del alcance de los productos.
Aunque este concepto no fue el favorito de los clientes, tuvo muy buena aceptación por parte de los mismos. Aunque no es un concepto potencial para desarrollar, si es potencial para derivar las buenas características que este posee e integrarlas al concepto final a desarrollar, en este caso el MediGab.
Gabinete médico


El objetivo principal de este concepto es la realización de un gabinete especial en donde se pueda guardar medicamentos con una organización clara y sencilla para el rápido alcance de estos en alguna circunstancia de emergencia.
Este propone impedir el alcance de estos medicamentos a niños, personas con algún tipo de depresión, fuera de un estado de coherencia mental o cualquiera que no esté apto/capacitado para su manejo, de esta manera se podrá evitar accidentes potenciales.
Según las informaciones recolectadas, mediante encuestas y diversos métodos de obtención y selección de data, el concepto del gabinete medico resultó ser el de mayor potencial para su realización, debido a que combate una necesidad latente, el evitar accidentes en el hogar por algún descuido, el cual puede traer graves consecuencias; muchos usuarios líderes se sintieron identificados, siendo esta la de mayor aceptación.
*Concepto a desarrollar: MediGab
Una vez que escogimos el concepto a desarrollar procedimos a desarrollar la arquitectura del producto, donde definimos los elementos físicos de construcción del producto en términos de lo que hacen. Desglosamos el MediGab según sus elementos, tanto funcionales como físicos, para comprender un poco mejor el funcionamiento de este y de qué manera cada una de sus partes aporta con el funcionamiento de otra.
Arquitectura del producto
Elementos físicos del producto
Identificamos las partes, componentes y subconjuntos que conforman nuestro gabinete. Esto nos ayudó a fijar la estructuración de lo que será nuestro producto en sí.
Al esquematiza el producto con dichos elementos, se acondicionan en trozos, los cuales interactúan entre sí y crea un harmonioso funcionamiento. Los trozos se relacionan con ellos mismos para que cada elemento pueda funcionar y así el producto también realice su función.

Implicaciones de la arquitectura
Debatimos sobre cómo dividir los elementos del producto en trozos y cuales caracteres asignar en la esquematización y arquitectura del mismo, cabe destacar que deben estar relacionados con los problemas que queremos resolver. Fue un tanto difícil llegar a una decisión, pero con la ayuda de nuestro libro de texto pudimos llegar a conclusiones concisas sobre como dividir el producto.
Cambio de Producto
En este paso implementamos ideas de cómo podemos hacer que los trozos sean más funcionales para el gabinete, tomando en cuenta los siguientes factores:
· Actualizar o innovar el producto.
· Subalternos del producto.
· Adaptación de cada trozo en los elementos funcionales.
· Durabilidad y calidad de los elementos físicos.
· Que no consuma muchos materiales gastables, lo cual se podría generar una reducción de costos para la empresa.
· Que sea multiusos o flexible en su uso.
· Que sea reciclable o reutilizable.
Esto nos ayudó de manera significativa para hacer más práctico nuestro producto y hacer cambios que puedan ser productivos tanto a empresas interesadas como para los usuarios.
Estandarización de componentes
Teníamos dificultades con la parte de estandarizar los trozos que se puedan reciclar para otros productos con otros objetivos o similares de los mismos, puede que luego los trozos que tengamos del producto sean de utilidad para otras creaciones o innovaciones y pueda ser otro ingreso para la empresa, lo cual también pueda tener el rol de suplidor para otras empresas las cuales sean favorecidas con los trozos que se implementen en nuestro producto innovador pero los elementos y trozos que contiene nuestro gabinetes no son creados si no ya de una plantilla ya existente.
Rendimiento del producto
Tuvimos vigentes las siguientes características para éste proceso:
· Rapidez en la que se realiza y se ensambla el gabinete.
· La eficiencia con la que se trabaja el producto y lo que el mismo pueda ofrecerle al cliente.
· Durabilidad en el cual el cliente se sienta conforme con la vida útil del producto.
· Que sea objetivo y cumpla con lo necesario a satisfacer.
· También que pueda enfrentar cualquier adversidad que pueda presentar el producto en su entorno.
Esto proporciona la optimización de las características de resistencia o rendimiento y otras como estructura, forma, color, textura y peso del gabinete. También analizamos el tipo de material que para nuestro producto implica mucho para su rendimiento.
Al diseñar los trozos de nuestro gabinete, nos percatamos de que se empleara diseño para manufactura (DFM). Esto nos sirve como reducción de costos, minimizando la cantidad de los trozos y su tamaño lo cual favorece significativamente a la empresa en la parte administrativa. Teniendo en cuenta que se realiza en el diseño del sistema que tendrá el producto.
Gestión del desarrollo del producto
Nos percatamos de que todas tengamos una coordinación a la hora de crear los trozos, esto ayuda a evitar errores futuros que se puedan causar a la hora del ensamble de trozos con los elementos funcionales. Tuvimos dificultades en la fase de diseño del sistema por los detalles de acoplamiento, que todos los trozos hagan que los elementos funciones y que cada componente de nuestro producto cumpla con las especificaciones, requisitos de rendimiento, capacidad de manufactura y tiempo del proceso.
Esquema del producto
Realizamos un diagrama que muestra los elementos que componen el gabinete. Agregamos elementos físicos como parte importante del concepto en el momento del desarrollo para mayor entendimiento. Manifestamos la idea más aceptada por los clientes potenciales y el equipo de trabajo, donde también se aproxima a la idea que tenemos para desarrollar el producto junto con sus correspondientes funciones.

Agrupación de los elementos del esquema
Integración geométrica y precisión

Similitud de tecnología de diseño o producción
Para nuestro producto se hace el uso de múltiples maquinarias comunes en los procesos de ebanistería tradicional, tales como:
· Pulidoras
· Cepillo de madera
· Tipos de brocas
· Destornillador
· Lijas
· Escuadra
· Grapadoras
· Sierras y serruchos
· Cepilladora y regruesadora
· Sierra de calar
· Pistola para pintar
Con estas herramientas la empresa Danilo Decoraciones S.A. tiene las capacidades que requiere la construcción de nuestro producto y por medio de las mismas llevar cada trozo a producirse, contando con que estas maquinarias y herramientas son utilizables para diversos trozos que accionen elementos funcionales.
Localización del cambio
En este paso cambiamos diferentes trozos que no alteraban de manera significativa los demás elementos y trozos que conforman al producto. Por esta razón no se necesitó aislar trozos para que no afectaran a todo el proceso de funcionamiento del gabinete.
En relación con este aspecto, cabe destacar que la capacidad de los costes de ajuste está relacionada con el tipo de cambios que es desarrollada por cada trozo que se modifica, pero al igual que lo referido por los autores, tomamos medidas para identificar si se puede o no aislar los trozos cambiados para que no afecte a los que realizan bien su función dentro del producto, como debatir sobre que es más conveniente para dichos cambios que mejoren a nuestro gabinete.
Permitir estandarización
Tratamos de que los trozos sean útiles para otros elementos funcionales ajenos al producto que queremos realizar. Esto puede servir mucho a la empresa para obtener otro rol como el de suplidor de otras empresas y así generar más ganancias con la misma producción que se realiza sin tener que hacer gastos financieros y de tiempo con la formulación de otro proceso de diseño sistemático.
Para esto agrupamos los elementos funcionales en un solo trozo que pueda ser representativo de varias funciones. También usamos productos estandarizados para nuestro beneficio y así reducir costos con trozos ya realizados por suplidores que ya lo tienen listo y evitar el proceso de producción de cada trozo.
Disposición geométrica aproximada

Consideramos que trazamos secciones del gabinete para poder obtener disposiciones que se pueden reemplazar y cambiarlo por uno mejorado, adaptándose a las especificaciones requeridas y las necesidades del cliente. Así mejoramos nuestros criterios y las decisiones que están muy relacionadas con los conflictos que se puedan generar en la agrupación de elementos.
Esto nos despierta la creatividad de seguir innovando tales como los diseñadores industriales en las diferentes empresas, pero que también en el transcurso puedan aparecer problemas de belleza del producto y con el funcionamiento de la misma, lo cual contiene un convenio geométrico de la creación de los trozos.
Identificación interacciones fundamentales e incidentales

Las relaciones funcionales y principales están localizadas entre los diversos elementos del gabinete MEDIGAB, entre los cuales están: Soporte entre la caja y los compartimientos, traslación entre los rieles y las puertas traslación entre los rieles y los compartimientos.
En cuanto a las relaciones secundarias pudimos destacar diversas, tales como la fricción que se pueden encontrar en los deslices de traslación y el choque de las puertas con los compartimientos.
Propuesta de posible proceso de fabricación para la empresa
El proceso de fabricación de nuestro producto no difiere mucho del proceso convencional y comúnmente utilizado por la empresa. Para poder ofrecer el nuevo producto a un precio competitivo es de suma importancia que el proceso de fabricación no sea costoso, como nos explica nuestro libro de texto, los diseñadores deben tener en cuenta el proceso de manufactura durante la confección de diseño.
El proceso de fabricación estaría formado por los siguientes pasos:
1. Adquisición de la materia prima, en este caso el tipo de madera que el cliente especifique madera.
2. Se limpian la madera y se corta según las dimensiones especificadas.
3. Se pule la madera
4. Se une y se va ensamblando por parte, estructura externa.
5. Se pinta
6. Se termina de armar la estructura interna, agregando los componentes restantes.
7. Colocar las gavetas en su sitio e instalar las puertas.
8. Dar chequeo completo al producto terminado en búsqueda de fallas.
Descripción del modelo 3D
Este re-diseño de los gabinetes convencionales, cuenta con la particularidad de que se compone de 3 piezas, lo que lo hace sencillo. Cuenta con la base, que actúa como el soporte o esqueleto del producto, tiene 9 gavetas para la distribución estratégica y 2 puertas que brindan más seguridad. Las gavetas están puestas equidistantes entre si y tienen buena profundidad, lo que permite contener una buena cantidad del producto a guardar, en este caso medicamentos.

Lista de partes y piezas

Nuestro diseño está confeccionado en madera, materia prima por excelencia para fabricación de gabinetes.
Planos de producción


Conclusión
En este entregable final, hemos realizado una memoria técnica del proceso completo de nuestro proyecto, en este se muestra el proceso detallado que abarca desde el levantamiento de la empresa hasta la arquitectura del producto final, se muestran todos los datos, informaciones y cálculos recolectados que respaldan dicho proyecto.
En esta se realizó una descripción de la ejecución técnica de todo el proceso de desarrollo de producto que hemos ido creando en todo el trimestre, donde se recolecta de manera clara, todos nuestros esfuerzos desde la idea raíz y sus directrices hasta nuestro concepto/producto final.
El conjunto de todos estos esfuerzos nos llevó a la conclusión de un concepto final, un gabinete orientado al almacenado de productos medicinales para el uso cotidiano del hogar. Ya que la problemática que intentamos resolver es la de sobredosis de medicamentos por parte de niños y discapacitados.
Referencia bibliográfica
· Ulrich, K. T. (2014). Diseño y Desarrollo de productos. México: Mc Graw Hill.
· Source: http://peopleprocessandprofit.com/2010/08/25/how-to- write-a- sow/
· Roica. (2010). Roica. Retrieved from http://www.hispamedia.biz/roica2010/quienessomos.html
· http://biblio3.url.edu.gt/Libros/gestion/6.pdf
· http://www.e-encuesta.com/inicio/
· http://biblio3.url.edu.gt/Libros/gestion/6.pdf
· http://www.pdcahome.com/2569/matriz-de-pugh-ayuda-a-la-toma-de-decisiones/
Anexos
1. Informaciones obtenidas mediante las encuestas










2. Dificultades de algunos usuarios




3. Encuesta de SurveyMonkey Usuario: ginaerika25

4. Búsqueda interna
Generación de ideas/búsqueda grupal






5. Entrevista a expertos


6. Planos del MediGab presentados al ebanista

7. MediGab


8. Google drive