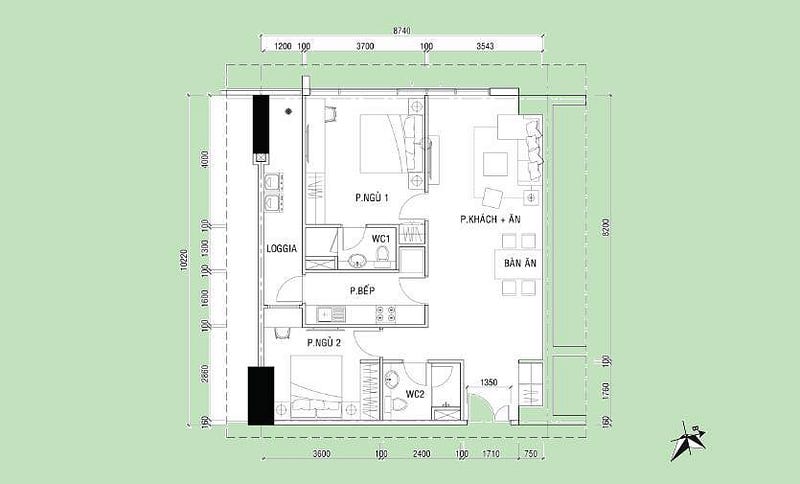
Căn hộ 2 phòng ngủ dự án Artemis

Các căn hộ loại A, B là những căn hộ 2 phòng ngủ của dự án Artemis

Sơ đồ căn hộ tầng điển hình

Căn hộ loại A

Diện tích tim tường: 82,8m2

Diện tích thông thủy: 79,46m2

Phòng ngủ master: 16,5m2

Phòng ngủ thường: 13,1m2

Thiết kế: 02 Phòng ngủ + phòng khách + phòng ăn + bếp + 2 wc + lô gia

Căn hộ loại B

Diện tích tim tường: 90,4m2

Diện tích thông thủy: 85,90m2

Phòng ngủ master: 19,5m2

Phòng ngủ thường: 10,5m2

Thiết kế: 03 Phòng ngủ + phòng khách + phòng ăn + bếp + 3 wc + lô gia

Nội thất của các căn 2 phòng ngủ:

Phòng khách — View 1

Phòng ngủ 1

Phòng khách View 3

Phòng khách View 2

Phòng ngủ 02

Phòng tắm Master

Bảng giá và thông tin chi tiết anh chị vui lòng Liên hệ với chúng tôi theo thông tin bên dưới:

Phòng Kinh Doanh — Công ty CP ACC Thăng Long (Chủ đầu tư dự án)

Địa chỉ: số 178, Trường Chinh, Đống Đa, Hà Nội

Điện thoại: 091.916.2906–04.6260.3435

(Gặp Mr.Bùi Hiển hoặc Ms. Thanh Hà)